
Revivo s.r.l.
Su Immobiliare.it da 5 anni
130 annunci1 Venduto/Affittato
130 risultati: Revivo s.r.l.
- 1/11sky


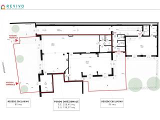
€ 2.500/meseUfficio - Studio via di Brozzi 54, Brozzi, FirenzeUfficio in affitto con accesso carrabile a Brozzi Descrizione In una posizione strategica e ben collegata della città, proponiamo in affitto un ampio ufficio di circa 230 mq, ideale per attività professionali che necessitano di spazi funzionali, moderni e facilmente adattabili. L’immobile si trova in Via di Brozzi e si distingue per la presenza di due resedi esclusivi che ne valorizzano ulteriormente l’utilizzo. L'ufficio è composto da quattro vani di generose dimensioni, tutti caratterizzati da una configurazione interna versatile che permette di modellare gli ambienti a seconda delle esig
1/48sky

€ 690.000Appartamento viale Pasquale Paoli, Campo di Marte, FirenzeCampo di Marte appartamento ristrutturato con giardino Descrizione In zona Campo di Marte, proponiamo in vendita un appartamento, posto al piano terra, completamente ristrutturato nel 2020. L’ingresso disimpegna in modo ordinato gli ambienti e conduce alla zona giorno, composta da ampio angolo cottura con sala da pranzo e da un grande soggiorno. La zona notte è composta da tre camere e tre bagni, con una distribuzione degli spazi funzionale e ben organizzata. La proprietà dispone inoltre di un giardino esclusivo, di circa 65 mq, di un ripostiglio e di una cantina. La ristrutturazione ha inte
1/11sky

€ 65.000Garage - Box via Cittadella 49, Fortezza - Stazione, FirenzeGarage / Box auto in vendita – Viale Belfiore, Firenze Descrizione In posizione strategica, nel cuore di Viale Belfiore, proponiamo in vendita garage/box auto situato in contesto comodo e facilmente accessibile. L’immobile si trova in zona ad alta densità residenziale e direzionale, a pochi passi dalla tramvia e dai principali servizi, rendendolo una soluzione ideale sia per uso personale che come investimento. Caratteristiche: • Accesso agevole da strada • Spazio adatto ad auto di medie dimensioni • Buona manovrabilità • Contesto sicuro • Ideale anche come deposito Ottima opportunit
1/10sky

€ 490.000Locale commerciale con laboratorio viale Belfiore, Fortezza - Stazione, FirenzeFondo commerciale a reddito 9%– Viale Belfiore, Firenze Descrizione In posizione strategica e di altissima visibilità, di fronte al Social Hub, proponiamo in vendita interessante fondo commerciale di circa 243 mq, situato in una delle zone più dinamiche e in forte sviluppo della città. L’immobile si distingue per le ampie vetrine su strada, che garantiscono eccellente visibilità e luminosità, oltre alla presenza di canna fumaria, caratteristica rara e particolarmente appetibile per attività di ristorazione. Attualmente locato con nuovo contratto 6+6 avviato nel 2026, a favore di un condutt
1/7sky

€ 360.000Magazzino - Deposito viale Belfiore 32, Fortezza - Stazione, FirenzeVia Cittadella - Magazzino Carrabile Descrizione In vendita a Firenze, nella rinomata zona di Porta a Prato, proponiamo un ampio magazzino di classe energetica G, ideale per diverse attività commerciali o come deposito. L'immobile, con ampio ingresso carrabile indipendente con H 4,5 mt, si sviluppa su tre livelli per un totale di 485 mq. Al piano terra troviamo un magazzino di 225 mq. con altezza di 5.35 mt, spazioso e facilmente accessibile, perfetto per le esigenze di stoccaggio, per l'allestimento di un laboratorio o come autorimessa per almeno 6 autovetture . Scendendo al piano seminterr
1/29sky

da € 240.000Appartamenti di nuova costruzione a Sesto FiorentinoAppartamenti di Nuova Realizzazione a Sesto Fiorentino - Classe A3 Descrizione A Sesto Fiorentino, in una posizione strategica, a pochi minuti dal centro, Presentiamo una nuova opportunità residenziale con appartamenti in Classe A3. Ottimi sia per chi cerca una nuova abitazione, sia per chi vuole fare un investimento sicuro. Gli acquirenti avranno la possibilità di scegliere tra diverse soluzioni, come trilocali e quadrilocali, con la possibilità di personalizzare materiali e finiture secondo il proprio gusto. Inoltre, grazie alle detrazioni fiscali previste per le opere di ristrutturazione
Appartamento€ 240.000474 m²11
Appartamento€ 240.000472 m²11
Appartamento€ 290.000497 m²11
1/5sky

€ 80.000Garage - Box via Cittadella 49, Fortezza - Stazione, FirenzeGarage / Box auto in vendita – Viale Belfiore, Firenze Descrizione In posizione strategica, nel cuore di Viale Belfiore, proponiamo in vendita garage/box auto situato in contesto comodo e facilmente accessibile. L’immobile si trova in zona ad alta densità residenziale e direzionale, a pochi passi dalla tramvia e dai principali servizi, rendendolo una soluzione ideale sia per uso personale che come investimento. Caratteristiche: • Altezza ingresso garage 4,5 mt • Accesso agevole da strada • Spazio adatto ad auto di medie dimensioni • Buona manovrabilità • Contesto sicuro • Ideale an
1/11star
1/37top
1/32top
1/37top
1/18top
1/15premium
1/11premium
1/17premium
1/10premium
1/17premium
1/16premium
1/11premium
1/12premium
1/46premium













