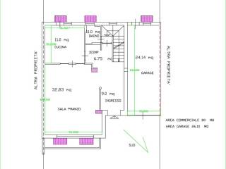
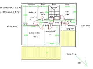
Sono il Consulente Immobiliare che stavi cercando. Trovo la casa ideale per te, lo spazio perfetto per il tuo lavoro o il terreno edificabile per le tue esigenze. Case e ville, dimore di pregio, appartamenti, negozi, terreni e capannoni.
Il mio obiettivo è la soddisfazione del cliente e per questo mi impegno a rispettarne le esigenze e le richieste in maniera coscienziosa e con grande professionalità. Prima, dopo e durante mi prendo cura del cliente a 360 gradi e lo faccio ponendo la massima attenzione ad ogni dettaglio, accompagnandolo fino alla vendita o all' acquisto avendo come priorità la sua serenità e fiducia.