Magazzino - Deposito in Vendita

€ 105.000
330 m²
2

Nota

Annuncio aggiornato il 19/07/2025
Descrizione

riferimento: AA267

Spazioso locale commerciale a Misterbianco in cat. C3

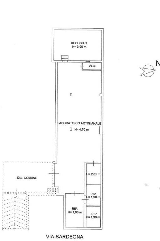
La Pantellaro Immobiliare propone in acquisto a Misterbianco ed esattamente in via Sardegna 52 un'ampio locale commerciale catastato in categoria C3, che consta di 225 mq più soppalco, che può ospitare fino a 3 comodi e luminosi uffici.

L'immobile si trova al piano interrato con ampio passo carrabile e dispone di uno spazioso disimpegno comune, molto comodo per carico e scarico merci.
La Pantellaro Immobiliare propone in vendita un ampio locale commerciale di 225 mq, situato in via Sardegna 52, a Misterbianco. L'immobile è catastato in categoria C3 e presenta un soppalco che consente la realizzazione di fino a 3 uffici luminosi e funzionali.

Caratteristiche principali:

Piano interrato con ampio passo carrabile e comodo disimpegno comune, ideale per il carico e lo scarico delle merci
Ottimo stato conservativo, pronto all'uso
Dotato di impianto di condizionamento a pompe di calore, impianto di allarme, videosorveglianza e riserva idrica
Scaffalature nel locale deposito per una gestione ottimale dello spazio
Precedentemente adibito a:

Officina
Deposito materiali idraulici
Uffici
La proprietà si presta perfettamente ad attività commerciali come laboratorio artigianale, deposito merci, o altre attività che necessitano di un ampio spazio funzionale, facilmente accessibile e con parcheggio comodo.

Prezzo: €105.000
Nota: L'immobile non è mutabile.

Per maggiori informazioni o per prenotare una visita, non esitate a contattarci telefonicamente o tramite WhatsApp al 351/5839639

Riferimento annuncio: AA267
Se vuoi saperne di più, puoi parlare con Roberto Pantellaro.
Caratteristiche
Contratto
Vendita
Tipologia
Magazzino - Deposito
Superficie
330 m²
Locali
2 bagni
Piano
2 piani: Seminterrato, Ammezzato
Box, posti auto
1 in box privato/box in garage
Disponibilità
Libero
Altre caratteristiche
  • Impianto di allarme
  • Passo carrabile
  • Recintato
  • Vigilanza CCTV
Dettaglio superficie

Magazzino - Deposito

Piano
Seminterrato
Superficie
225,0 m²
Coefficiente
100%
Tipo superficie
Principale
Sup. commerciale
225,0 m²

Ufficio o Studio

Piano
Ammezzato
Superficie
105,0 m²
Coefficiente
100%
Tipo superficie
Principale
Sup. commerciale
105,0 m²
Informazioni sul prezzo
Prezzo
€ 105.000
Prezzo al m²
318 €/m²
New
Dettaglio dei costi
Spese condominio
Nessuna spesa condominiale
Planimetria
Planimetria
Scopri ogni angolo dell'immobile
+29
Opzioni aggiuntive

Contatta l'inserzionista

Oppure