Capannone in Vendita

€ 693.000
1.046 m²

Nota

Annuncio aggiornato il 11/11/2025
Descrizione

riferimento: 83360

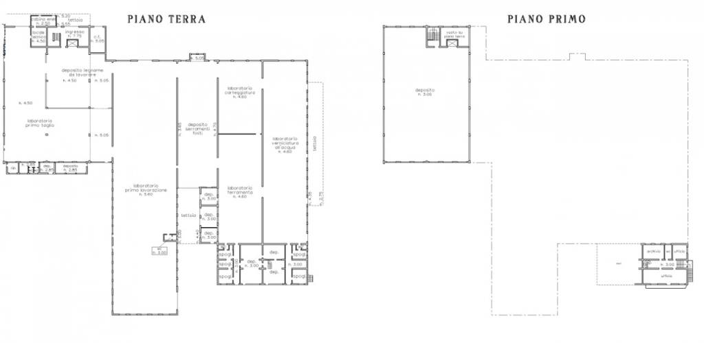
Capannone in vendita nel Comune di Isola Rizza, in Via Corte Capra, sviluppato su 2 livelli composto da 4 corpi fabbrica comunicanti fra loro.
Il corpo di fabbrica principale è dotato di locali accessori al piano terra, mentre al piano 1 si trovano la zona uffici e l'abitazione. Il fabbricato è realizzato con una struttura portante in cemento armato prefabbricato per la parte industriale/artigianale e mista in muratura e pilastri in c.a. per parte ad uffici; nei capannoni la copertura è piana con lucernai in vetro, le tettoie hanno manto in lamiera ondulata per la porzione uffici/abitazione; gli infissi esterni sono in legno nella zona uffici e metallici nella zona artigianale/industriale; la pavimentazione interna è in gres per la parte uffici e in battuto di cls per i laboratori.

La proprietà è situata in zona industriale, in prossimità della SS343 e SP45a che collegano l'area alle località limitrofe.

Il presente annuncio non costituisce elemento contrattuale. Le informazioni riportate sono solo a titolo esemplificativo.

YARD RE è la società di intermediazione immobiliare del Gruppo Yard Reaas specializzata nella compravendita e locazione di immobili, con una particolare expertise nella gestione di distressed asset rivenienti da leasing ripossessati, NPL, UTP, (sofferenze, incagli bancari), aste e procedure concorsuali.
Per avere maggiori informazioni potete scrivere a info.re@yardreaas.it o telefonare al numero 02.500.31.999
Caratteristiche
Contratto
Vendita
Tipologia
Capannone
Superficie
1.046 m²
Disponibilità
Libero
Informazioni sul prezzo
Prezzo
€ 693.000
Prezzo al m²
663 €/m²
New
Dettaglio dei costi
Spese condominio
Nessuna spesa condominiale
Efficienza energetica

Consumo di energia

175 kWh/m² annoG

Planimetria
Planimetria 630529
Planimetria 629951
Scopri ogni angolo dell'immobile
+6
Opzioni aggiuntive

Contatta l'inserzionista

Oppure