Capannone in Vendita

€ 720.000
2.955 m²
2

Nota

Annuncio aggiornato il 17/06/2024
Descrizione

riferimento: 3471

Capannone Industriale in vendita a Martina Franca (TA), provinciale ex ss 581

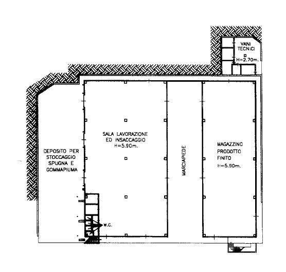
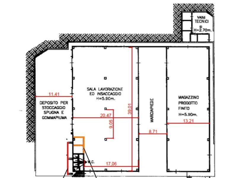
Cerved Property Services Italy S.r.l. propone in vendita complesso immobiliare composto da due corpi di fabbrica, a Martina Franca, a circa 7,5 km dal centro storico, di 2.955 mq commerciali.
Il primo capannone, nella parte destra dell'area, si sviluppa su due livelli di 532 mq ciascuno: al livello inferiore (H = 6,00 m circa) è ubicata la zona di stoccaggio del prodotto finito, mentre, al piano superiore (H = 3,50 m circa), si trovano la zona uffici di circa 263 mq e la sala prototipi di circa 270 mq; entrambi i piani sono dotati di servizi igienici e collegati da scala esterna, coperta, situata in adiacenza al prospetto principale dell'edificio.
Il secondo capannone, di dimensioni maggiori, è situato nella parte sinistra dell'area, e si sviluppa su due livelli di 826 mq ciascuno: al livello inferiore (H = 6,00 mt circa) è ubicata la zona di lavorazione del prodotto, mentre al piano superiore (H = 3,50 mt circa) vi è la sala taglio e cucito; entrambi i piani sono dotati di servizi igienici e collegati da scala esterna, coperta, situata in adiacenza al prospetto principale dell'edificio.
Infine, vi è un deposito per lo stoccaggio del materiale, adiacente e comunicante con il capannone più grande, costituto da un'ampia area coperta di circa 229 mq che si sviluppa su un unico livello (H = 3.90 mt) chiuso su tre lati ed aperto sul fronte.
Completa la proprietà un'ampia area esterna di circa 2.570 mq completamente recintata.
Per maggiori informazioni e una visita in loco, vedasi riferimenti a lato.
Caratteristiche
Contratto
Vendita
Tipologia
Capannone
Superficie
2.955 m²
Locali
2 bagni
Informazioni sul prezzo
Prezzo
€ 720.000
Prezzo al m²
244 €/m²
New
Planimetria
Scopri ogni angolo dell'immobile
+38
Opzioni aggiuntive

Contatta l'inserzionista