Capannone all'asta via Cremona, 11/13, Pizzighettone

da € 912.000,00
15/12/2025
12.141 m²

Nota

Annuncio aggiornato il 04/04/2025
Descrizione

riferimento: 19873

Complesso industriale con area scoperta

Quest’immobile viene venduto tramite asta online. Complesso industriale, in Pizzighettone (CR), Fraz. Roggione, Via Cremona 11/13. Zona urbanizzata, ben servita da strada ampia e comoda.
Completamente recintato, comprende edifici destinati a produzione ed altri adibiti ad ufficio, esposizione e vendita. Area scoperta ad uso stoccaggio materiali per la produzione o di scarto.
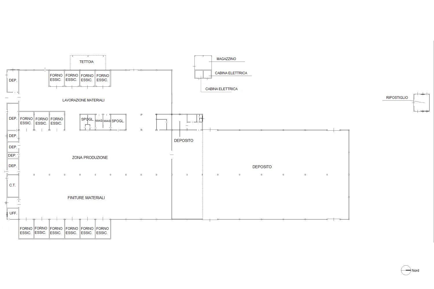
L’unità produttiva principale è un capannone, somma di più costruzioni realizzate in epoche differenti, adibito a lavorazione e magazzino in cui sono presenti forni e locali accessori tra cui ufficio, centrale termica.
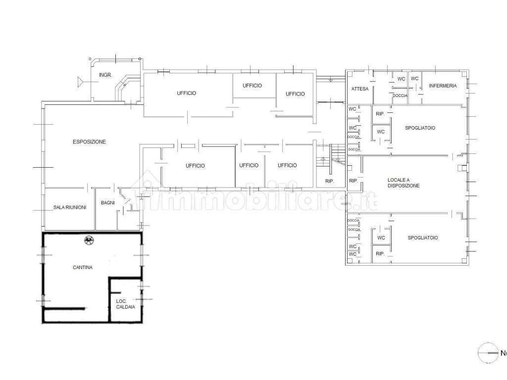
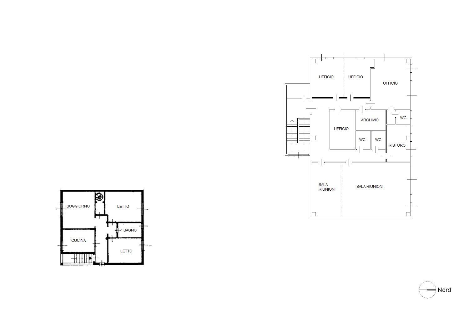
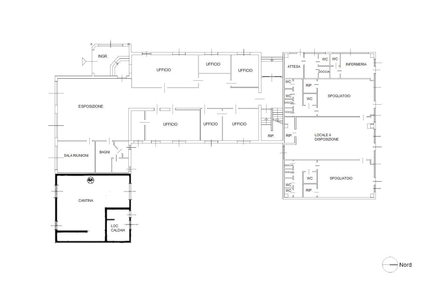
Lato est del capannone, palazzina a pianta irregolare in parte ad 1 piano fuori terra ed in parte a 2: sala esposizioni, ufficio custode, ufficio amministrativo, sala mensa, spogliatoi e abitazione.
A nord, lato est capannone, costruzione metallica che ospita lavorazione di materiali, box graniglie e officina.
Davanti al capannone principale (verso via Cremona), tettoia metallica con copertura in fibrocemento.
Ad est della palazzina uffici, struttura metallica parzialmente soppalcata, uso magazzino.
All’interno della recinzione, lato ovest, vi è una cabina elettrica; l’altra si trova all’esterno su via Cremona.
Situazione urbanistica e regolarità edilizia meglio specificate in perizia (pag 7-11).
Complesso libero.
Beni mobili presenti all’interno in vendita sul nostro sito Industrial Discount – [Asta 5875](https://www.industrialdiscount.it/aste/linee-produzione-pavimentazione-e-prodotti-laterizi-5875/)
Beni residuali, materie prime e inerti presenti, da smaltire a carico dell’aggiudicatario.
Per maggiori dettagli consultare i documenti allegati.

Superfici commerciali:
Tettoia 1244 mq
Capannone e accessori 9017 mq
Costr. metallica: 622,76 mq
Palazzina PT 779,75 mq
Palazzina P1 260,85 mq
Cabina elettrica 26 mq
Magaz. est 190,29 mq

Piena proprietà di:
Complesso industriale (CF): Foglio 23 - Particella 252 - Subalterno 501 (graffato con Part 253 – Sub 501, Part 254 – Sub 501, Part 255 – Sub 501, Part 256 – Sub 501, Part 257 – Sub 501, Part 389 – Sub 501, Part 390 – Sub 501) - Cat D/7
Abitazione (CF): Foglio 23 - Particella 390 - Subalterno 2 - Cat A/2
Quimmo.it: iniziativa tech del Gruppo illimity specializzata nell’intermediazione digitale di beni immobili provenienti da tribunali, nuovi sviluppi immobiliari, financial institutions e libero mercato.
Da oltre 10 anni Quimmo.it è il portale specializzato nella compravendita di immobili tramite asta giudiziaria. Il portale è infatti iscritto nel Registro Gestori della vendita telematica e nell’elenco dei siti web autorizzati allo svolgimento della pubblicità legale. Con Quimmo puoi scegliere tra migliaia di immobili di ogni tipo e partecipare alle aste online per acquistare la soluzione più adatta alle tue esigenze.
Affidati all’esperienza decennale dei nostri esperti e richiedi l’assistenza gratuita per la presentazione e compilazione dell’offerta.
Contattaci subito.
Caratteristiche
Contratto
Vendita
Tipologia
Capannone | Intera proprietà
Superficie
12.141 m²
Locali
1 bagno
Piani edificio
1
Box, posti auto
1 in box privato/box in garage
Dati catastali
Foglio 23 - Particella 252 - Subalterno 501
Efficienza energetica
  • Anno di costruzione

    1966
  • Stato

    Buono / Abitabile
  • Certificazione energetica

    Non classificabile
Dettaglio vendite
Tipo vendita
Competitiva
Data vendita
15/12/2025, 12:00
Per partecipare
Offerta minima
€ 912.000,00
Rialzo minimo
€ 20.000
Spesa prenota debito
No
Contributo non dovuto
No
Dettagli lotto
Numero immobili
1
Dati procedura
Aggiornato il
17/10/2025
Numero procedura
2/2019
Procedura
Concordato Preventivo
Tribunale
Cremona
Documenti ufficiali
Planimetria
Virtual tour
Scopri ogni angolo dell'immobile
+29
Opzioni aggiuntive

Contatta l'inserzionista