Villa unifamiliare via Mulimento, Cicciano

€ 330.000
4
357 m²
3+
Balcone
Terrazzo

Nota

Annuncio aggiornato il 24/08/2025
Descrizione

riferimento: EK-106613609

CICCIANO, si propone in vendita Villa in Costruzione in Via Mulimento, su quattro livelli con ingresso indipendente, ampio giardino e piscina, in un tranquillo ed elegante contesto.
La Villa da progetto sarà composta da:
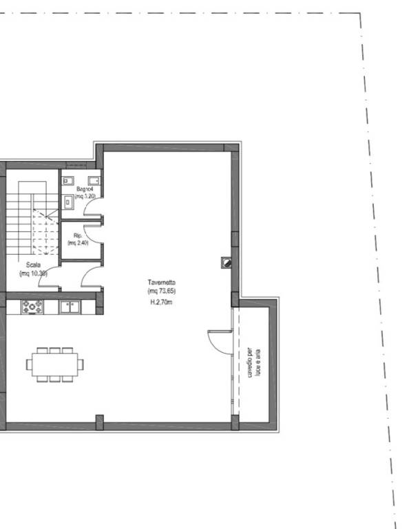
- Piano Seminterrato: bagno, taverna, studio e cantina.
- Piano Terra: box auto piano strada all’americana; ingresso in ampio salone con camino con cucina open space e lavanderia e bagno; con accesso dalla sala su due ampi giardini in cui sarà realizzata una piscina.
- Primo piano: ampio disimpegno, camera da letto patronale con bagno en suite e cabina armadio, altre due camere ed ulteriore bagno.
- Ampio terrazzo panoramico con predisposizione per installazione fotovoltaico.
Il prezzo di 330.000€ è riferito alla villa allo stato attuale in corso di costruzione (struttura in cemento armato stato grezzo con impermeabilizzazioni e pareti di tamponamento e predisposizione impianti). Possibilità di consegna chiavi in mano con personalizzazione spazi e rifiniture.

Per info e appuntamenti telefonare preferibilmente dalle 8 alle 13.
Caratteristiche
Tipologia
Villa unifamiliare | Intera proprietà
Contratto
Vendita
Piano
Seminterrato, piano rialzato, da 1 a 2
Piani edificio
4
Superficie
357 m² | commerciale 413,8 m²
Locali
4
Camere da letto
3
Bagni
3+
Arredato
No
Balcone
Terrazzo
Box, posti auto
1 in box privato/box in garage, 2 in parcheggio/garage comune
Altre caratteristiche
  • Cucina
  • Infissi esterni in vetro / legno
  • Esposizione nord, sud, est, ovest
  • Piscina
Dettaglio superficie

Abitazione

Piano
1
Superficie
89,3 m²
Coefficiente
100%
Tipo superficie
Principale
Sup. commerciale
89,3 m²

Box o garage

Superficie
18,0 m²
Coefficiente
50%
Tipo superficie
Accessoria
Sup. commerciale
9,0 m²

Abitazione

Piano
2
Superficie
89,3 m²
Coefficiente
100%
Tipo superficie
Principale
Sup. commerciale
89,3 m²

Abitazione

Piano
Piano rialzato
Superficie
89,3 m²
Coefficiente
100%
Tipo superficie
Principale
Sup. commerciale
89,3 m²

Giardino

Superficie
200,0 m²
Coefficiente
10%
Tipo superficie
Accessoria
Sup. commerciale
20,0 m²

Terrazzo

Superficie
62,0 m²
Coefficiente
30%
Tipo superficie
Accessoria
Sup. commerciale
18,6 m²

Balcone

Superficie
30,0 m²
Coefficiente
30%
Tipo superficie
Accessoria
Sup. commerciale
9,0 m²

Abitazione

Piano
Seminterrato
Superficie
89,3 m²
Coefficiente
100%
Tipo superficie
Principale
Sup. commerciale
89,3 m²
Informazioni sul prezzo
Prezzo
€ 330.000
Prezzo al m²
797 €/m²
Dettaglio dei costi
Spese condominio
Nessuna spesa condominiale
Planimetria
Scopri ogni angolo dell'immobile
+18
Inserzionista

Privato

Telefono

Mutuo
%
Durata del mutuo

Rata da € 980 al mese

€ 99.000 (30%)

€ 231.000 (70%)

Vuoi sapere che mutuo puoi richiedere?

Opzioni aggiuntive

Contatta l'inserzionista

Privato

Telefono