Terreno edificabile in Vendita

€ 280.000
610 m²

Nota

Annuncio aggiornato il 03/11/2025
Descrizione

riferimento: Cod. rif 3129857

Terreno

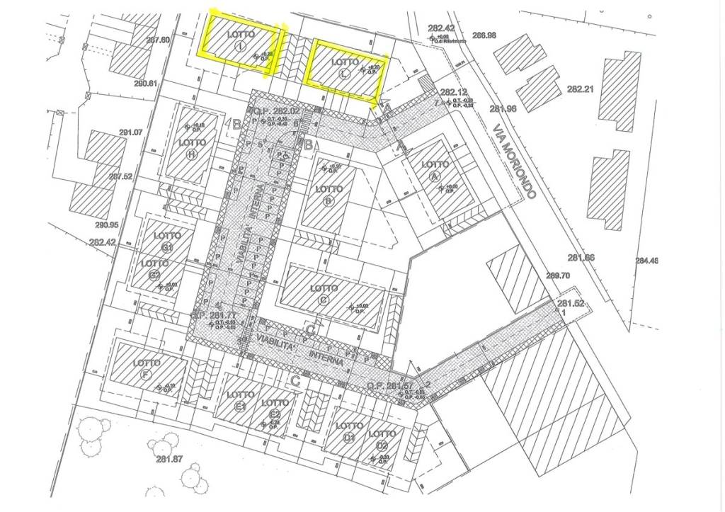
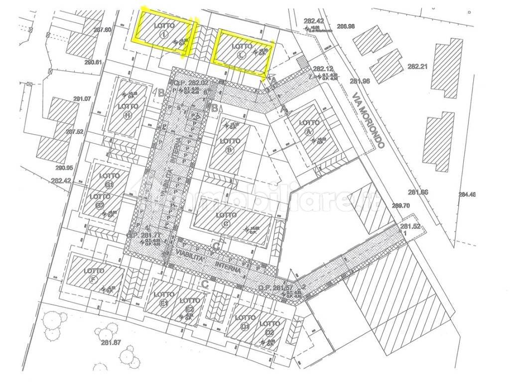
Splendida opportunità di investimento nel comune di Rivalta di Torino (TO)! Questo terreno edificabile ad uso abitativo, con una superficie di 610 mq di SLP, offre la possibilità di edificare due complessi quadrifamiliari, per un totale di 8 alloggi, in un contesto tranquillo e ben servito. Situato in una zona residenziale, il terreno gode di una posizione strategica vicino ai principali servizi e alle vie di comunicazione.
Ideale per imprese di costruzione.
Caratteristiche
Contratto
Vendita
Tipologia
Terreno edificabile
Superficie
610 m²
Altezza massima edificabile
1 m
Area edificabile
1 m²
Informazioni sul prezzo
Prezzo
€ 280.000
Prezzo al m²
459 €/m²
New
Planimetria
20240222165944235_page-0001.jpg
Virtual tour
Scopri ogni angolo dell'immobile
+8
Opzioni aggiuntive

Contatta l'inserzionista

Oppure