Locale commerciale in Vendita

€ 205.000
150 m²
3
T

Nota

Annuncio aggiornato il 04/03/2024
Descrizione

riferimento: 4711UL66910-3015

VENDITA – LOCALE COMMERCIALE

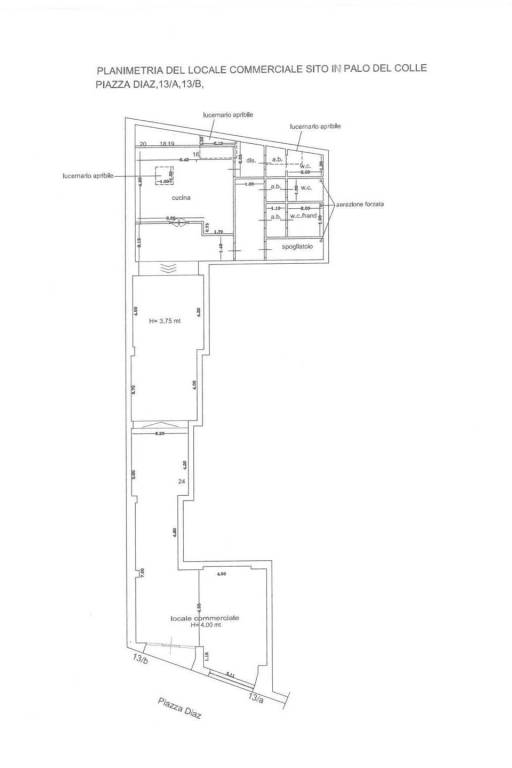
In vendita a Palo del Colle, in Piazza Diaz, in una zona centralissima e ben collegata, proponiamo locale commerciale a piano terra. Questa spaziosa struttura, attualmente sede di un'attività ben avviata, offre un'opportunità unica per imprenditori che desiderano un'ubicazione strategica per il loro business. La struttura si sviluppa in maniera verticale, offrendo una superficie di circa 150 mq. Nella zona antistante, troviamo tre ampie stanze, ideali per l'offerta di servizi nell'ambito che si intende pubblicizzare. Nella zona retrostante, vi sono una cucina, uno spogliatoio e tre bagni, uno dei quali attrezzato per persone diversamente abili. Questa proprietà commerciale rappresenta un'opportunità straordinaria per coloro che cercano uno spazio dinamico e funzionale nel cuore di Palo del Colle. La sua posizione centrale lo rende un punto di riferimento per la comunità locale e per i visitatori. È circondato da negozi, uffici e servizi, garantendo un alto flusso di passaggio. Il locale presenta due ampie vetrine che non solo illuminano gli ambienti interni, ma offrono anche un'ottima opportunità per la pubblicità e la visibilità del marchio, catturando l'attenzione dei passanti. La sua posizione centralissima, le vetrine espositive e la disposizione degli spazi consentono di sviluppare un'attività con alto potenziale di successo.
Per ulteriori informazioni rivolgersi presso CASAGENCY IMMOBILIARE AFFILIATO PALO DEL COLLE - CORSO VITTORIO EMANUELE, 76 TEL. 080 62 73 23. Classe Energetica: G EPI: 165,00 kwh/m3 anno
Se vuoi saperne di più, puoi parlare con Antonio Alberga.

Di solito risponde entro 1 giorno

Caratteristiche
Contratto
Vendita | Immobile a reddito
Tipologia
Locale commerciale
Superficie
150 m²
Locali
3 bagni - uno o più adatto a persone disabili
Piano
Piano terra, con accesso disabili
Piani edificio
2
Ultima attività svolta
Centro estetico
Disponibilità
Disponibile dal 01/01/2025
Altre caratteristiche
  • Antincendio a pioggia
  • Impianto di allarme
  • Luci d'emergenza
  • Passo carrabile
  • Porta tagliafuoco
  • Saracinesche automatiche
  • Uscita emergenza
  • Vigilanza CCTV
Dettaglio superficie

Negozio - Locale commerciale

Piano
Piano terra
Superficie
150,0 m²
Coefficiente
100%
Tipo superficie
Principale
Sup. commerciale
150,0 m²
Informazioni sul prezzo
Prezzo
€ 205.000
Prezzo al m²
1.367 €/m²
New
Dettaglio dei costi
Spese condominio
Nessuna spesa condominiale
Efficienza energetica

Consumo di energia

165 kWh/m³ annoG

Planimetria
Casagency Immobiliare Palo del Colle Vendita
Scopri ogni angolo dell'immobile
+15
Opzioni aggiuntive

Contatta l'inserzionista

Oppure