Trilocale piazza Pietro Leopoldo, Leopoldo - Vittorio Emanuele - Statuto, Firenze

€ 265.000
3
70 m²
1
R
Balcone
Parzialmente Arredato
Cantina

Nota

Annuncio aggiornato il 29/05/2024
Descrizione

riferimento: 13bnd

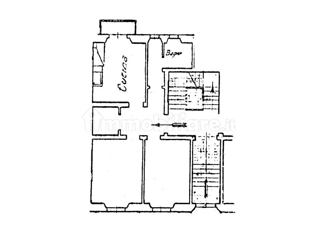
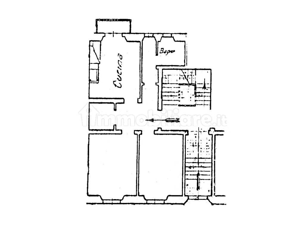
con balcone, cantina e possibilità di secondo servizio

Situato in Via Sallustio Bandini (ad appena 100 metri da Piazza Leopoldo e la sua fermata della linea tranviaria), posto al piano terreno rialzato (alto) di palazzo con ascensore e parti comuni in ordine, vendesi ampio e luminoso trilocale - con taglio e soffitti alti caratteristici dei primi '900 - la cui superficie calpestabile di circa 70 mq è attualmente così utilizzata: ingresso, soggiorno, cucina abitabile con balcone tergale, camera da letto matrimoniale, bagno e antibagno entrambi finestrati e ripostiglio, oltre cantina privata finestrata di 14 mq posta al piano seminterrato. Possibilità - nel corso dei necessari interventi di riammodernamento - di realizzare il secondo servizio e di ampliare agevolmente la già ampia cucina di 16 mq (includendo ripostiglio e/o antibagno) per sfruttare l'attuale soggiorno come seconda camera da letto. Libero e disponibile da subito. Categoria catastale A/3, rendita € 569,39. Richiesta: € 265.000. Per ulteriori informazioni ed eventuale sopralluogo: +39 346 4232800.
Se vuoi saperne di più, puoi parlare con Lorenzo Del Sordo.
Caratteristiche
Tipologia
Appartamento | Intera proprietà | Classe immobile media
Contratto
Vendita
Piano
Piano rialzato
Piani edificio
4
Ascensore
Superficie
70 m²
Locali
3
Camere da letto
1
Cucina
Cucina abitabile
Bagni
1
Arredato
Parzialmente Arredato
Balcone
Terrazzo
No
Riscaldamento
Autonomo
Altre caratteristiche
  • Esposizione doppia
  • Fibra ottica
  • Infissi esterni in vetro / legno
  • Porta blindata
  • Impianto tv centralizzato
Dettaglio superficie

Abitazione

Piano
Piano rialzato
Superficie
70,0 m²
Coefficiente
100%
Tipo superficie
Principale
Sup. commerciale
70,0 m²
Informazioni sul prezzo
Prezzo
€ 265.000
Prezzo al m²
3.786 €/m²
New
Dettaglio dei costi
Spese condominio
€ 50/mese
Efficienza energetica

Consumo di energia

≥ 175 kWh/m² annoG

Planimetria
bnd_pln1
bnd_pln2
bnd_pln4
bnd_pln3
Scopri ogni angolo dell'immobile
+40
Mutuo
%
Durata del mutuo

Rata da € 787 al mese

€ 79.500 (30%)

€ 185.500 (70%)

Vuoi sapere che mutuo puoi richiedere?

Opzioni aggiuntive

Contatta l'inserzionista

Oppure