Villa unifamiliare via Solferino 53, Castiglione delle Stiviere

€ 360.000
5
225 m²
3+
No
Balcone

Nota

Annuncio aggiornato il 25/06/2025
Descrizione

riferimento: EK-112115809

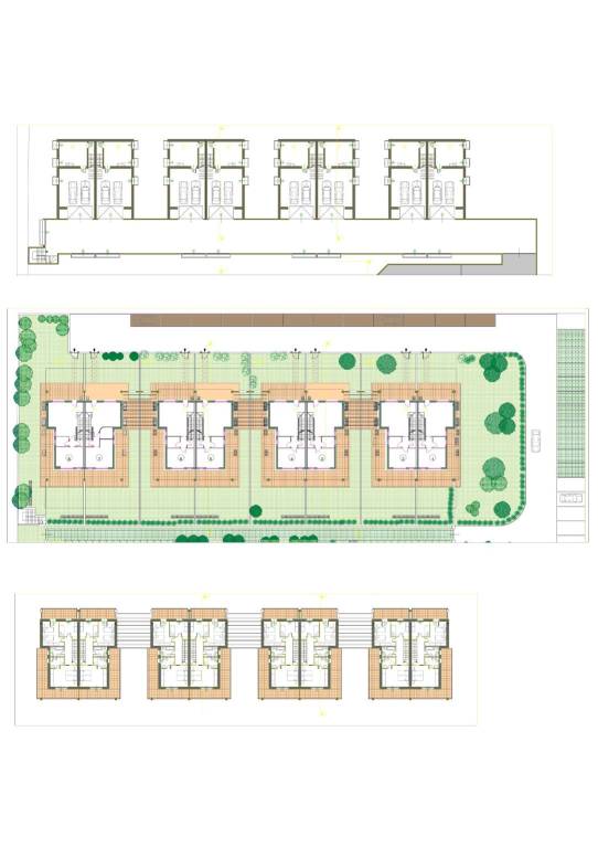
Ville bifamiliari di testa con ampio giardino a Solferino

Altavista Immobiliare è entusiasta di presentare una straordinaria opportunità immobiliare nel prestigioso Villaggio Silva Lucana, nel comune di Solferino: le ville bifamiliari di testa con ampi giardini.
Queste splendide residenze, attualmente in fase di completamento, rappresentano il massimo della raffinatezza e dell'eleganza. Le quattro bifamiliari, per un totale di otto unità, condividono una configurazione simile, differenziandosi solo per gli spazi esterni e l'orientamento. Ogni abitazione offre un ingresso indipendente che si apre su un ampio giardino frontale.
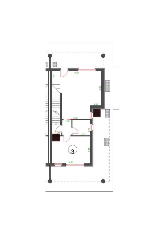
Il piano terra si compone di un luminoso soggiorno e una cucina, separati da un primo bagno che divide le due zone. Una maestosa scala a vista nel soggiorno conduce alla zona notte, dove un ballatoio introduce alle tre camere da letto. La camera matrimoniale è dotata di un bagno padronale, mentre le altre due camere singole condividono un secondo bagno. La zona notte è impreziosita da due splendide terrazze panoramiche con vista sulla torre di Solferino.
Il piano interrato offre una taverna con servizi per il relax, un bagno, una lavanderia e un locale tecnico. Completa il piano un ampio garage in grado di ospitare due automobili e altro spazio per gli spostamenti.
Gli spazi esterni sono generosi e ben curati, con portici e zone pavimentate, circondati da un elegante muretto con recinzione stilizzata. È possibile personalizzare il capitolato, che comprende pavimenti in gres con formati ampi, fino a 80x80, o parquet in listoni di varie dimensioni. Il riscaldamento a pavimento è garantito da un sistema ibrido con pompa di calore alimentata da pannelli fotovoltaici.
La gestione dell'intera casa sarà agevolata dall'impianto elettrico con tecnologia KNX, che permette il controllo personalizzato tramite smartphone o tablet. Tra le caratteristiche aggiuntive vi sono travi a vista sbiancate, parapetti in acciaio e vetro, e sistemi di oscuramento delle finestre, per un ambiente di assoluto prestigio.
Questa è un'opportunità unica per coloro che cercano un immobile di prestigio, con finiture di alta qualità e dettagli curati in ogni aspetto. Non esitate a contattarci per ulteriori informazioni e per personalizzare la vostra nuova dimora nel Villaggio Silva Lucana.
Caratteristiche
Tipologia
Villa unifamiliare | Intera proprietà | Immobile di lusso
Contratto
Vendita
Piano
Piano terra
Piani edificio
2
Ascensore
No
Superficie
225 m²
Locali
5
Camere da letto
3
Cucina
Cucina abitabile
Bagni
3+
Arredato
No
Balcone
Terrazzo
No
Box, posti auto
2 in box privato/box in garage, 1 in parcheggio/garage comune
Riscaldamento
Autonomo, a pavimento, alimentato a pompa di calore
Climatizzazione
Autonomo, freddo/caldo
Altre caratteristiche
  • Esposizione esterna
  • Fibra ottica
  • Impianto di allarme
  • Infissi esterni in doppio vetro / PVC
  • Porta blindata
  • Taverna
  • Cancello elettrico
  • Impianto tv singolo
Dettaglio superficie

Abitazione

Piano
Piano terra
Superficie
65,0 m²
Coefficiente
100%
Tipo superficie
Principale
Sup. commerciale
65,0 m²

Abitazione

Piano
Piano terra
Superficie
65,0 m²
Coefficiente
100%
Tipo superficie
Principale
Sup. commerciale
65,0 m²

Abitazione

Piano
Piano terra
Superficie
65,0 m²
Coefficiente
100%
Tipo superficie
Principale
Sup. commerciale
65,0 m²

Giardino

Piano
Piano terra
Superficie
300,0 m²
Coefficiente
10%
Tipo superficie
Principale
Sup. commerciale
30,0 m²
Informazioni sul prezzo
Prezzo
€ 360.000
Prezzo al m²
1.600 €/m²
New
Dettaglio dei costi
Spese condominio
Nessuna spesa condominiale
Spese riscaldamento
€ 500/anno
Efficienza energetica

Consumo di energia

55 kWh/m² annoA

Planimetria
n.03 piano interrato 1
piante e sezioni - architettonici _ 0. Piano 1
n.8 piamo primo
n.03 piano primo 1
n.03 piano terra 1
n.8 piamo terra
n.8 piamo interrato
Virtual tour
Scopri ogni angolo dell'immobile
+18
Mutuo
%
Durata del mutuo

Rata da € 1.069 al mese

€ 108.000 (30%)

€ 252.000 (70%)

Vuoi sapere che mutuo puoi richiedere?

Opzioni aggiuntive

Contatta l'inserzionista

Oppure