Rustico via Piatta SNC, Piatta, Castione Andevenno

€ 250.000
448 m²

Nota

Annuncio aggiornato il 09/09/2025
Descrizione

riferimento: EK-112313263

Rustico ideale per la realizzazione di casa vacanza

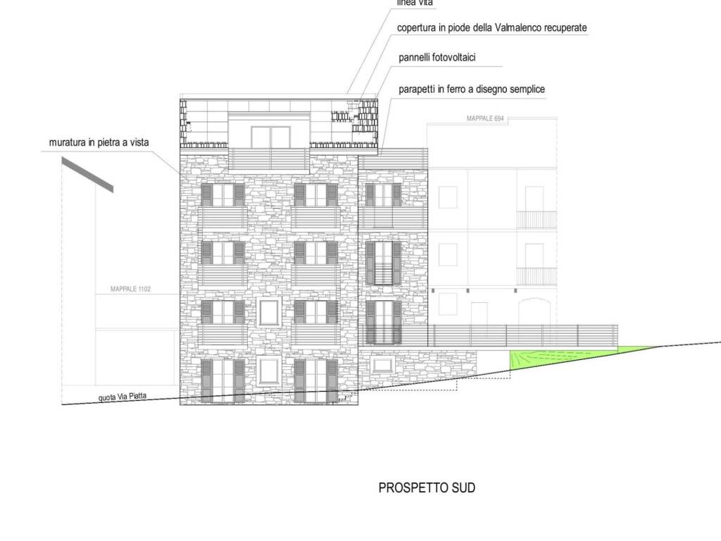
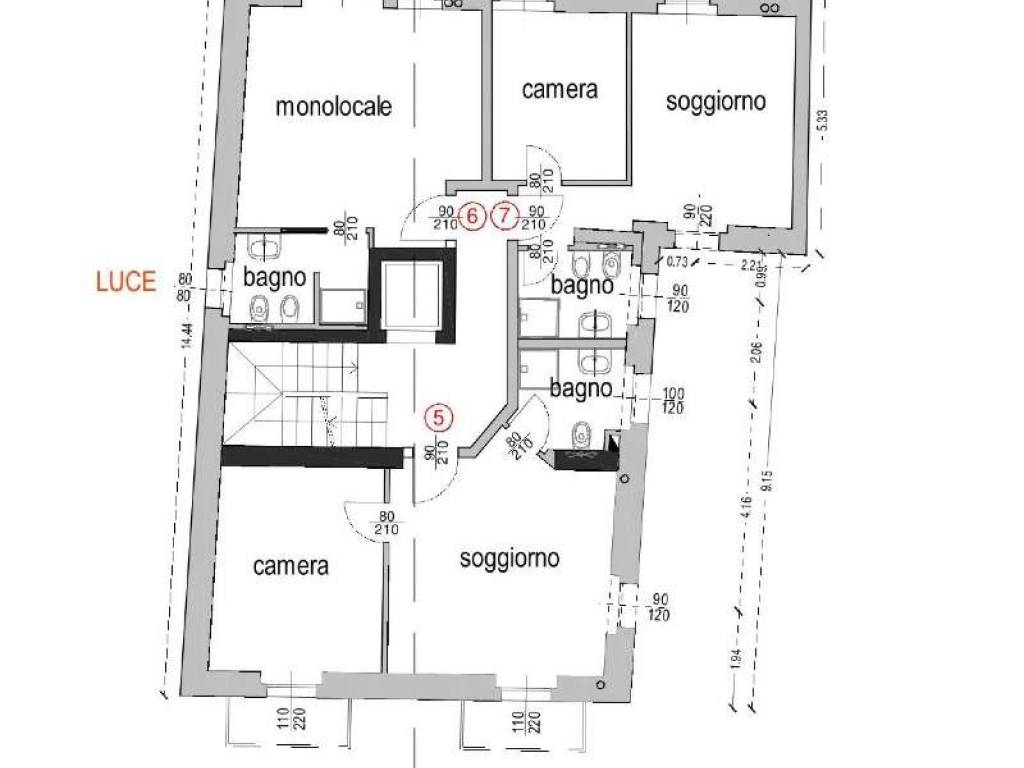
Castione: località Piatta, in zona panoramica e soleggiata, fabbricato indipendente allo stato rustico libero su due lati e disposto su più livelli con terreni pertinenziali antistanti di 800 mq. La proprietà, con permesso di costruire già esistente, si presta alla realizzazione di struttura turistica ricettiva quale bed & breakfast, oppure residence con più unità abitative indipendenti. Disponibili presso i nostri uffici planimetrie di progetto, volte alla creazione di interessanti soluzioni, dalle quali si evince, inoltre, che è possibile la realizzazione di un edificio completamente accessibile e fruibile anche da parte di disabili motori. La posizione del fabbricato risulta ottimale, ci troviamo su quello che è chiamato "l'anello dei borghi del vino", zona ricca di terrazzamenti e dal clima mite anche in inverno grazie allo speciale rapporto con il sole che rende la soluzione ideale per gli amanti dell'aria aperta e del relax; può essere inoltre uno strategico punto di partenza per diverse attività turistiche che la zona propone fino ad arrivare alla vicina Valmalenco. Euro 250.000,00
Caratteristiche
Tipologia
Rustico
Contratto
Vendita
Piano
Piano terra
Superficie
448 m²
Balcone
No
Terrazzo
No
Informazioni sul prezzo
Prezzo
€ 250.000
Prezzo al m²
558 €/m²
New
Dettaglio dei costi
Spese condominio
Nessuna spesa condominiale
Efficienza energetica
  • Stato

    Da ristrutturare
  • Certificazione energetica

    Esente
Scopri ogni angolo dell'immobile
+13
Mutuo
%
Durata del mutuo

Rata da € 743 al mese

€ 75.000 (30%)

€ 175.000 (70%)

Vuoi sapere che mutuo puoi richiedere?

Opzioni aggiuntive

Contatta l'inserzionista

Oppure