Capannone in Vendita

€ 98.000
695 m²

Nota

Annuncio aggiornato il 03/07/2025
Descrizione

riferimento: CO2468

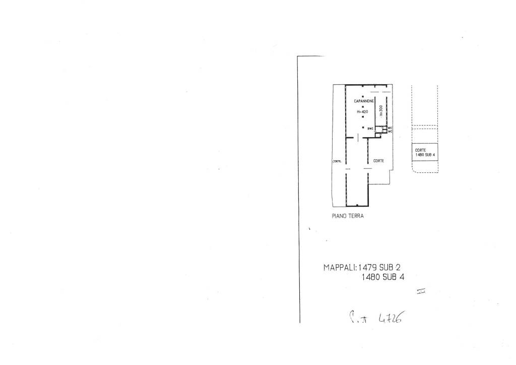
Capannone artigianale in vendita a Pasian di Prato

Pasian di Prato capannone artigianale di circa 660 mq, area scoperta totale di circa 350 mq
Il capannone ha un'altezza di circa 4.20 metri nel parte più alta, dispone di due ingressi oltre un terzo dal quale si accede ad un'area scoperta di circa 250 mq.
Attualmente suddiviso in un locale unico oltre un ufficio e servizi.
Si presta a diverse destinazioni d'uso.

superfici
capannone 660 mq
area esterna 350 mq

note
finiture del periodo
zona servita
parcheggio
Caratteristiche
Contratto
Vendita
Tipologia
Capannone
Superficie
695 m²
Piano
Piano terra, con accesso disabili
Piani edificio
1
Box, posti auto
2 in parcheggio/garage comune
Disponibilità
Libero
Altezza capannone
420 m
Altre caratteristiche
  • Recintato
Dettaglio superficie

Capannone

Piano
Piano terra
Superficie
660,0 m²
Coefficiente
100%
Tipo superficie
Principale
Sup. commerciale
660,0 m²

Terreno

Piano
Piano terra
Superficie
350,0 m²
Coefficiente
10%
Tipo superficie
Principale
Sup. commerciale
35,0 m²
Informazioni sul prezzo
Prezzo
€ 98.000
Prezzo al m²
141 €/m²
New
Dettaglio dei costi
Spese condominio
Nessuna spesa condominiale
Efficienza energetica

Consumo di energia

200 kWh/m² annoG

Planimetria
capannone pasian di prato 1
Scopri ogni angolo dell'immobile
+10
Opzioni aggiuntive

Contatta l'inserzionista

Oppure