map icon

Capannone in Vendita

PizzighettoneVia dell'Artigianato, 8
€ 420.000
5+
1.200 m²
3

Nota

Annuncio aggiornato il 29/10/2024
Descrizione

riferimento: 60927872

DESCRIZIONE E PARTICOLARITA'
Proponiamo in vendita complesso produttivo sito a Pizzighettone (CR) , più precisamente in Via Dell'artigianato.
L'immobile si estende su un lotto di circa 2.900 mq, sul quale emerge il capannone di circa 1200 mq, di cui 120 mq circa dedicati ad una zona uffici; il tutto distribuito interamente al piano terra. Mentre la restante parte adibita a capannone industriale/artigianale, suddiviso in due strutture. La soluzione in oggetto è dotata di ampia area esterna ad uso esclusivo che consente agevoli spazi di manovra di circa 1700 mq. La proprietà è inoltre completamente recintata.
LIBERO SUBITO.
Caratteristiche principali:
Il capannone comprende due strutture differenti, di conseguenza troviamo due altezze diverse:
- Struttura 1: Altezza al colmo: 7m; Altezza sotto trave:5m ;
- Struttura 2 : Altezza al colmo: 11m; Altezza sotto trave: 9,20m ;
- Larghezza: 40m;
- Lunghezza: 30m;
- Carroponte ( con portata di 5 ton. );
- Mensole;
- Due accessi carrai;
- Tre Portoni; (due larghi 4,5m e alti 4,30m) (uno largo 4,7 e alto 4,30);
- Impianto elettrico e di illuminazione;
- Riscaldamento e aria condizionata;
- Porta tagliafuoco;
- Uscita e luci di emergenza;
- Aria compressa;
- Cablato;
- Portineria/Reception;
- Tre Servizi igienici;
- Spogliatoio e doccia.
UBICAZIONE E CONTESTO
Pizzighettone, è un comune italiano di 6 259 abitanti della provincia di Cremona in Lombardia, situato nella Val Padana centrale, lungo il fiume Adda.
Se vuoi saperne di più, puoi parlare con Nicola Gervasi.

Di solito risponde entro 12 ore

Caratteristiche
Contratto
Vendita
Tipologia
Capannone
Superficie
1.200 m²
Locali
5+ locali, 3 bagni
Piano
Piano terra, con accesso disabili
Piani edificio
1
Disponibilità
Libero
Altezza capannone
9,2 m
Altezza sottotrave
11 m
Carroponti
1
Altre caratteristiche
  • Docce
  • Passo carrabile
  • Reception
  • Recintato
  • Spogliatoio
Dettaglio superficie

Capannone

Piano
Piano terra
Superficie
1.200,0 m²
Coefficiente
100%
Tipo superficie
Principale
Sup. commerciale
1.200,0 m²
Informazioni sul prezzo
Prezzo
€ 420.000
Prezzo al m²
350 €/m²
New
Dettaglio dei costi
Spese condominio
Nessuna spesa condominiale
Efficienza energetica
  • Anno di costruzione

    1992
  • Stato

    Buono / Abitabile
  • Riscaldamento

    Autonomo, ad aria
  • Climatizzatore

    Autonomo, freddo/caldo
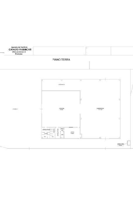
Planimetria
PLAN
Scopri ogni angolo dell'immobile
+30
Opzioni aggiuntive

Contatta l'inserzionista

Oppure