Quadrilocale via Achille Grandi, Tregasio, Triuggio

€ 370.000
4
118 m²
2
2
Balcone
Cantina

Nota

Annuncio aggiornato il 24/07/2025
Descrizione

riferimento: A.07

Ampio appartamento di quattro locali

Triuggio, nella signorile frazione di Tregasio e immerso in uno scorcio verde della Brianza, proponiamo ampio appartamento di quattro locali al piano secondo, servito da ascensore, in piccolo complesso di elegante nuova costruzione, ove sono disponibili anche soluzioni con giardino privato. L'immobile, composto da ampio soggiorno, cucina abitabile, tre camere da letto e doppi servizi, offre la possibilità di godere di momenti all'aperto grazie alla presenza di due comodi loggiati oltre ad un balcone. Riscaldamento autonomo a pavimento, predisposizione ventilazione meccanica controllata, condizionamento, raffrescamento ed impianto di allarme. Possibilità di personalizzazione grazie a materiali di primaria fattura. Completano la soluzione cantina e box doppio.
Caratteristiche
Tipologia
Appartamento | Intera proprietà | Classe immobile signorile
Contratto
Vendita - Scarica capitolato
Piano
2
Piani edificio
4
Ascensore
Superficie
118 m²
Locali
4
Camere da letto
3
Cucina
Cucina abitabile
Bagni
2
Arredato
No
Balcone
Terrazzo
No
Box, posti auto
2 in box privato/box in garage
Riscaldamento
Autonomo, a pavimento, alimentato a pompa di calore
Climatizzazione
Predisposizione impianto
Altre caratteristiche
  • Esposizione doppia
  • Fibra ottica
  • Impianto di allarme
  • Infissi esterni in doppio vetro / PVC
  • Porta blindata
  • Cancello elettrico
  • Impianto tv singolo
  • VideoCitofono
Dettaglio superficie

Abitazione

Piano
2
Superficie
118,0 m²
Coefficiente
100%
Tipo superficie
Principale
Sup. commerciale
118,0 m²
Informazioni sul prezzo
Prezzo
€ 370.000
Prezzo al m²
3.136 €/m²
New
Dettaglio dei costi
Spese condominio
Nessuna spesa condominiale
Efficienza energetica

Consumo di energia

≥ 3,51 kWh/m² annoA2

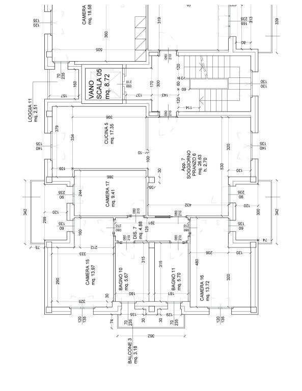
Planimetria
A07a 1
A07b 1
A07
Scopri ogni angolo dell'immobile
+4
Mutuo
%
Durata del mutuo

Rata da € 1.099 al mese

€ 111.000 (30%)

€ 259.000 (70%)

Vuoi sapere che mutuo puoi richiedere?

Opzioni aggiuntive

Contatta l'inserzionista

Oppure