Palazzo - Edificio in Vendita

€ 1.480.000
5+
2.500 m²
3+
T

Nota

Annuncio aggiornato il 18/06/2025
Descrizione

riferimento: 60912141

Negozio commerciale a reddito posto fronte strada ed ubicato nel comune di Bedizzole

DESCRIZIONE E PARTICOLARITÀ

Proponiamo in vendita uno stabile indipendente a destinazione commerciale con superficie complessiva di circa 2.500 mq.

L'edificio viene venduto a reddito ed è attualmente concesso in locazione alle seguenti attività:

ristorante con camere, negozio di vendita al dettaglio di abbigliamento e casalinghi, scuola di musica e club privato.

I canoni annuali corrisposti dagli inquilini corrispondono a circa 109.000 Euro, di conseguenza la rendita annua della struttura corrisponde al 7,38%.

Il negozio si sviluppa come segue:

- Piano terra con superficie di circa 1.000 mq divisa tra negozio di casalinghi e ristorante

- Piano primo con superficie di circa 1.000 mq divisa in scuola di musica e dall'altro lato camere ed appartamenti collegati al ristorante

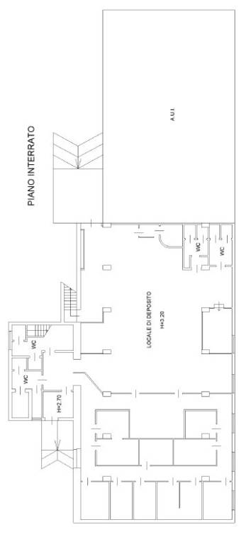
- Piano seminterrato di circa 500 mq adibito a club privato.

Sul fronte dello stabile è presente un ampio parcheggio privato ad uso pubblico, mentre sul retro un'ulteriore area asfaltata dove è presente una cubatura residua per lo sviluppo di altre costruzioni.

Maggiori informazioni in agenzia.

UBICAZIONE E CONTESTO

Bedizzole è un comune italiano di circa 12.500 abitanti della provincia di Brescia in Lombardia, collocato tra Rezzato e Gavardo in direzione lago di Garda. Il comune di Bedizzole dista circa 17 chilometri ad est dal capoluogo (Brescia) e 8 chilometri dal Lago di Garda. I caselli autostradali più vicini sono l'uscita di Brescia Est che dista 5 km e l'uscita di Desenzano che dista 12 km. La direttrice principale è l'autostrada A4 Milano - Venezia. Il paese di Bedizzole è situato ad est di Brescia, tra la fascia alta della pianura padana e i rilievi occidentali dei colli morenici. Il territorio del comune è attraversato dal fiume Chiese. Monumento di rilievo il Castello, eretto in un luogo che permetteva di dominare la pianura circostante.
Se vuoi saperne di più, puoi parlare con Industriale Desenzano SRL.

Di solito risponde entro 12 ore

Caratteristiche
Contratto
Vendita | Immobile a reddito
Tipologia
Palazzo - Edificio | Classe immobile media
Superficie
2.500 m²
Locali
5+ locali, 3+ bagni - uno o più adatto a persone disabili
Piano
Piano terra, con accesso disabili
Piani edificio
1
Box, posti auto
50 in parcheggio/garage comune
Disponibilità
Libero
Uso edificio attuale
Commerciale
Altre caratteristiche
  • 2 balconi
  • Esposizione esterna
  • Infissi esterni in vetro / legno
Dettaglio superficie

Altro

Piano
Piano terra
Superficie
2.500,0 m²
Coefficiente
100%
Tipo superficie
Principale
Sup. commerciale
2.500,0 m²
Informazioni sul prezzo
Prezzo
€ 1.480.000
Prezzo al m²
592 €/m²
New
Efficienza energetica
  • Anno di costruzione

    1990
  • Stato

    Buono / Abitabile
  • Riscaldamento

    Autonomo, ad aria, alimentato a pompa di calore
  • Climatizzatore

    Autonomo, freddo/caldo
Planimetria
SUB.1
SUB 2
SUB 3
SUB 4
Scopri ogni angolo dell'immobile
+25
Opzioni aggiuntive

Contatta l'inserzionista

Oppure