Rustico via Chiesa 18, Chiesa Di Sasso, Asiago

€ 75.000
5+
273 m²
3
No
Parzialmente Arredato
Cantina

Nota

Annuncio aggiornato il 27/09/2025
Descrizione

riferimento: T913

LA MAGIA D' UN TEMPO: PORZIONE DI CASA

Natura, panorama, animali, relax e sicurezza

Rustico Immerso nella Natura a Sasso di Asiago

Remax presenta in esclusiva una splendida porzione di casa "rustico" situata nella pittoresca frazione di Sasso di Asiago, ideale per chi desidera vivere immerso nella natura e nella tranquillità.

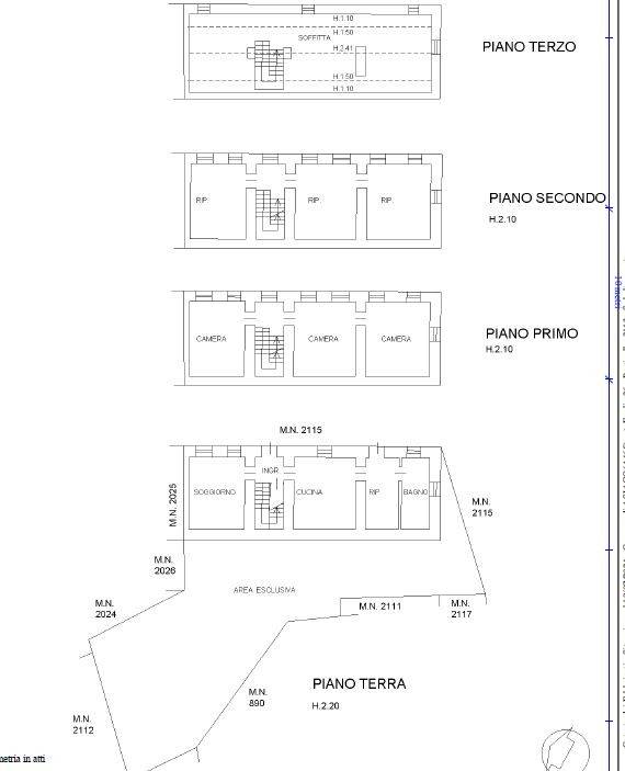
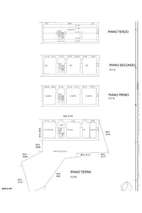
Questa abitazione, sviluppata su tre piani con entrata indipendente, offre ampi spazi e numerose stanze che possono essere riorganizzate secondo le proprie esigenze.

La cucina abitabile è perfetta per accogliere familiari e amici, mentre il soggiorno ampio e luminoso invita al relax.

Spazi per tre bagni garantiscono comfort e praticità, mentre l'ingresso dà subito un senso di Casa.

La zona notte comprende tre camere da letto matrimoniali spaziose e confortevoli, oltre a due ulteriori camere che possono essere utilizzate come stanze per gli ospiti o per altre necessità.

La casa dispone anche di una stireria, uno studio tranquillo per lavorare o studiare, e un ripostiglio per organizzare al meglio gli spazi.

Il giardino esterno grazie ai terreni di proprietà offre un'oasi di verde e un posto ideale per godere della natura circostante.

La cantina fornisce spazio extra per conservare vini e provviste, mentre il posto auto scoperto, con la possibilità di un posto auto coperto, aggiunge ulteriore comodità.

La sala hobby e la mansarda rappresentano spazi versatili da personalizzare a proprio piacimento.

Uno degli elementi più affascinanti di questa proprietà è la struttura per dependance con un caratteristico caminetto antico esterno, che aggiunge un tocco di charme rustico.

Questa casa è un vero gioiello, in attesa di esprimere a pieno tutta la sua bellezza e il suo fascino.

Grazie ai generosi spazi, alla luce naturale abbondante e alla tranquillità, questo rustico offre un panorama mozzafiato che diventa parte integrante della vita quotidiana.

Non perdere l'opportunità di vivere in un luogo unico. Contattaci per maggiori informazioni e per organizzare una visita.

T913
Se vuoi saperne di più, puoi parlare con Remax Puntocase3.

Di solito risponde entro 12 ore

Caratteristiche
Tipologia
Rustico | Intera proprietà | Classe immobile media
Contratto
Vendita
Piano
Piano terra
Piani edificio
3
Ascensore
No
Superficie
273 m²
Locali
5+
Camere da letto
5
Cucina
Cucina abitabile
Bagni
3
Arredato
Parzialmente Arredato
Balcone
No
Terrazzo
No
Box, posti auto
2 in parcheggio/garage comune
Riscaldamento
Autonomo, a radiatori, alimentato a metano
Altre caratteristiche
  • Caminetto
  • Esposizione esterna
  • Infissi esterni in vetro / legno
  • Mansarda
  • Impianto tv singolo
Dettaglio superficie

Abitazione

Piano
Piano terra
Superficie
273,0 m²
Coefficiente
100%
Tipo superficie
Principale
Sup. commerciale
273,0 m²
Informazioni sul prezzo
Prezzo
€ 75.000
Prezzo al m²
275 €/m²
New
Dettaglio dei costi
Spese condominio
Nessuna spesa condominiale
Efficienza energetica

Consumo di energia

158.73 kWh/m² annoF

Planimetria
1
2
Virtual tour
Scopri ogni angolo dell'immobile
+29
Mutuo
%
Durata del mutuo

Rata da € 223 al mese

€ 22.500 (30%)

€ 52.500 (70%)

Vuoi sapere che mutuo puoi richiedere?

Opzioni aggiuntive

Contatta l'inserzionista

Oppure