Terreno edificabile in Vendita

€ 80.000
750 m²

Nota

Annuncio aggiornato il 25/07/2024
Descrizione

riferimento: CONT24

MONTECRESTESE, F.ne PORTANO, 6 km da Domodossola EDIFICABILE

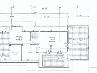
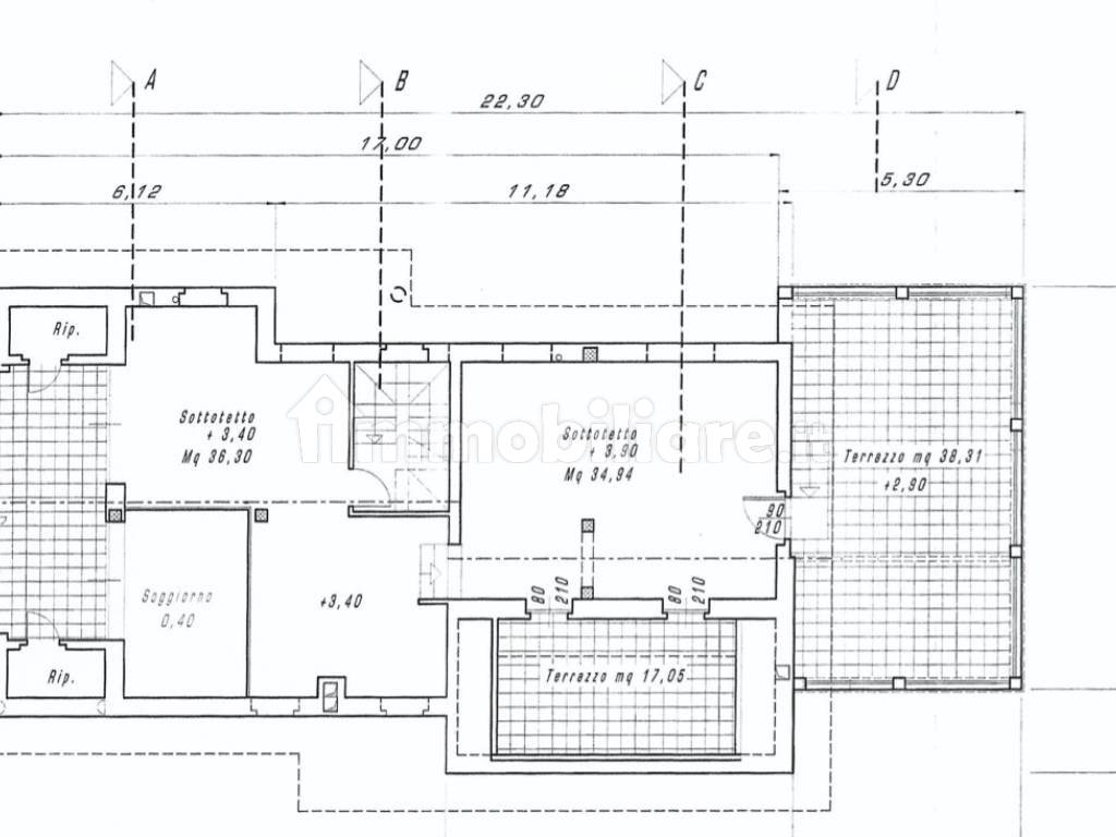
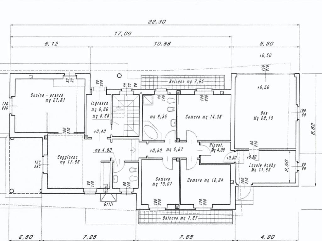
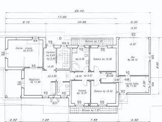
MONTECRESTESE, F.ne PORTANO, 6 km da Domodossola, VENDIAMO un terreno edificabile di 750 mq . La richiesta è di 80 mila euro. E' stato fatto un progetto di fattibilità dal quale si evidenzia la possibilità di costruire una villetta con le seguenti misure:
Piano seminterrato mq 79
Piano terra rialzato mq 144
Box e legnaia mq 40
Balconi e porticato mq 32
Sottotetto mq 73
Terrazzi mq 108
Per info e visite sul posto chiama OSSOLACASE Gianni Daverio 328 29 52 993 Nicolo' Daverio 349 62 87 205
Se vuoi saperne di più, puoi parlare con Nicolò Daverio.
Caratteristiche
Contratto
Vendita
Tipologia
Terreno edificabile
Superficie
750 m²
Disponibilità
Libero
Qualificazione urbanistica
Singola unità
Dislivello terreno
Leggero
Altezza massima edificabile
7 m
Area edificabile
750 m²
Altre caratteristiche
  • Allaccio acqua
  • Allaccio elettricità
  • Allaccio fogne
  • Allaccio gas
  • Illuminazione pubblica
Informazioni sul prezzo
Prezzo
€ 80.000
Prezzo al m²
107 €/m²
New
Scopri ogni angolo dell'immobile
+11
Opzioni aggiuntive

Contatta l'inserzionista

Oppure