Trilocale via BERLINGUER (S.AGATA) 11, Sant'Agata Bolognese

€ 169.000
3
70 m²
1
2
No
Balcone
Parzialmente Arredato

Nota

Annuncio aggiornato il 19/01/2026
Descrizione

riferimento: A011

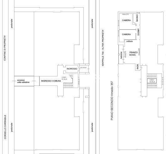
Trilocale con balcone e garage

Rif: A011 - RIFERIMENTO: A011
La Tempocasa di Sant'Agata Bolognese propone in vendita, in zona Semicentrale, appartamento trilocale di recente costruzione al secondo piano con garage e balcone e posto auto condominiale. INTERNO: L'immobile comprende un soggiorno con cucina ad angolo cottura, 2 camere da letto e un bagno. Termoautonomo.
Completano l'immobile infissi in doppio vetro/legno e porta blindata. ESTERNO: L'immobile è dotato di garage e posto auto.
L'immobile è posizionato in zona semicentrale, ottima e comoda a tutti i servizi.
Caratteristiche
Tipologia
Appartamento | Intera proprietà | Classe immobile economica
Contratto
Vendita
Piano
2 piano
Piani edificio
2
Ascensore
No
Superficie
70 m²
Locali
3
Camere da letto
2
Cucina
Cucina angolo cottura
Bagni
1
Arredato
Parzialmente Arredato
Balcone
Terrazzo
No
Box, posti auto
1 in box privato/box in garage, 1 in parcheggio/garage comune
Riscaldamento
Autonomo, a radiatori, alimentato a metano
Altre caratteristiche
  • Esposizione interna
  • Infissi esterni in vetro / legno
  • Porta blindata
  • Impianto tv singolo
Informazioni sul prezzo
Prezzo
€ 169.000
Prezzo al m²
2.414 €/m²
Dettaglio dei costi
Spese condominio
€ 58/mese
Efficienza energetica
  • Anno di costruzione

    2007
  • Stato

    Buono / Abitabile
  • Riscaldamento

    Autonomo, a radiatori, alimentato a metano
  • Certificazione energetica

    In attesa di certificazione
Planimetria
plan
Appartamento
Autorimessa
Virtual tour
Scopri ogni angolo dell'immobile
+14
Opzioni aggiuntive

Contatta l'inserzionista

Oppure