Rustico via Giovanni Benedetti, Centro, Rocca di Mezzo

€ 54.000
120 m²

Nota

Annuncio aggiornato il 17/09/2025
Descrizione

riferimento: EK-114215169

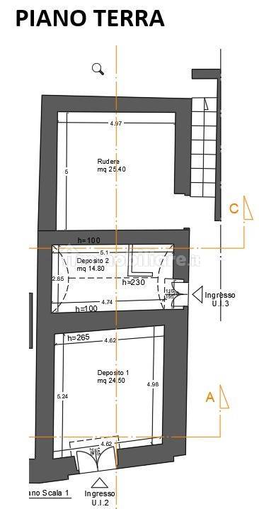
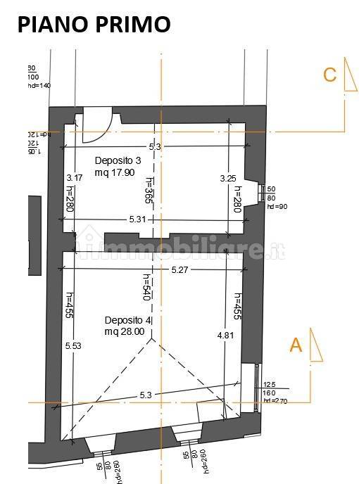
Rudere Zona Tre Archi con corte esclusiva

Rudere di 120 mq con corte esclusiva .Parte di un aggregato cui e' avvenuto consolidamento sismico post sisma.Tetto in legno....Ottima soluzione
Caratteristiche
Tipologia
Rustico | Intera proprietà
Contratto
Vendita
Piano
Piano terra
Superficie
120 m²
Dettaglio superficie

Abitazione

Piano
Piano terra
Superficie
120,0 m²
Coefficiente
100%
Tipo superficie
Principale
Sup. commerciale
120,0 m²
Informazioni sul prezzo
Prezzo
€ 54.000
Prezzo al m²
450 €/m²
New
Efficienza energetica

Consumo di energia

≥ 175 kWh/m² annoG

Scopri ogni angolo dell'immobile
+12
Mutuo
%
Durata del mutuo

Rata da € 160 al mese

€ 16.200 (30%)

€ 37.800 (70%)

Vuoi sapere che mutuo puoi richiedere?

Opzioni aggiuntive

Contatta l'inserzionista

Oppure