Attività commerciale in Affitto

€ 1.200/mese
160 m²
2

Nota

Zenso

Prestiti online e veloci

Confronta le offerte in 1 minuto

Annuncio aggiornato il 04/09/2024
Descrizione

riferimento: FBT

Locale commerciale in affitto a Zanè

In affitto, locale commerciale situato nel comune di Zanè.

Trattativa Unica Immobiliare, Via Gombe 18 - 0445.362244/info@immobiliareunica.com

La posizione privilegiata ne fa un'ottima opportunità per avviare o espandere la propria attività commerciale. Situato in una zona ben frequentata, il locale ha ampi spazi ideali per svariate tipologie d'imprese commerciali.
Spazio molto luminoso con tutte le predisposizioni.
Possibilità di pubblicità su totem e vetrine.

Ampio parcheggio a disposizione.

Questa attività commerciale offre due unità:

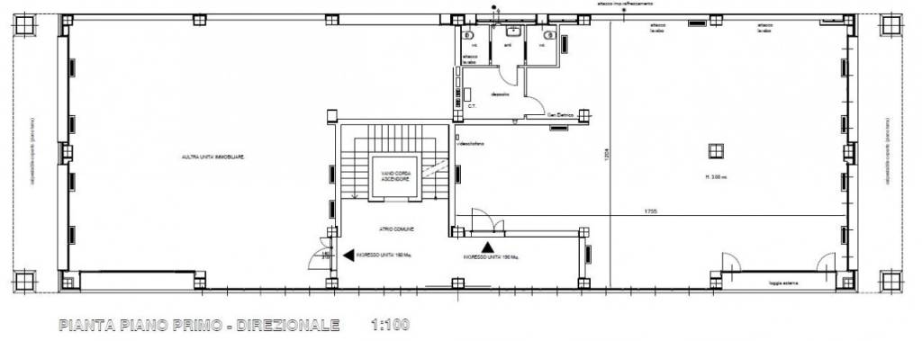
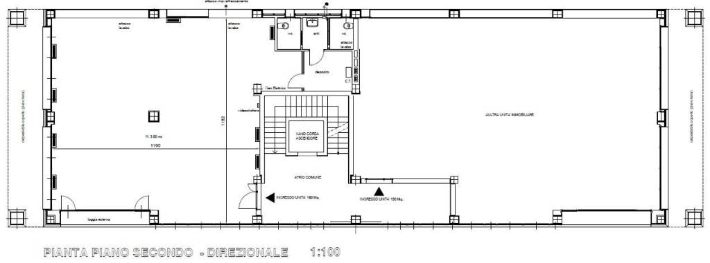
Piano 1 - 1400 + Iva / mese - spese cond. 800 / anno - Metratura 190mq
Piano 2 - 1200 + Iva / mese - spese cond. 800 / anno - Metratura 160mq

Rif. FBT
Se vuoi saperne di più, puoi parlare con Unica Immobiliare.
Caratteristiche
Contratto
Affitto
Tipologia
Attività commerciale | con mura
Superficie
160 m²
Piano
Piani edificio
1
Dettaglio superficie

Negozio - Locale commerciale

Piano
2
Superficie
160,0 m²
Coefficiente
100%
Tipo superficie
Principale
Sup. commerciale
160,0 m²
Informazioni sul prezzo
Prezzo
€ 1.200/mese
Prezzo al m²
8 €/m²
New
Dettaglio dei costi
Spese condominio
€ 67/mese
Cauzione
Non indicata
Efficienza energetica

Consumo di energia

≥ 3,51 kWh/m² annoG

Planimetria
002__2
001__1
Opzioni aggiuntive

Contatta l'inserzionista

Oppure