Locale commerciale in Vendita

€ 795.000
2
1.113 m²
2
R

Nota

Annuncio aggiornato il 09/09/2025
Descrizione

riferimento: EK-114389089

VENDONSI LOCALI AD USO COMMERCIALE - PRODUTTIVO - TERZIARIO - DIREZIONALE - DEPOSITO, ubicati in un fabbricato sviluppantesi su tre livelli: Seminterrato, Rialzato e Piano Primo, sito in Barletta alla via Callano a ridosso della zona residenziale in adiacenza al rondò sottopasso ferroviario crocevia di assi viari principali (Via Andria SP 170 dir Autostrada S.S. 16 Adriatica– Viale Vittorio Veneto Stazione FS – Via Callano SP 168) ricadente in area “Zone Franche Urbane”.
In dettaglio sono in vendita:
• LOCALE a Piano Rialzato in via Callano nn° 36-38, di Superficie Lorda commerciale pari a mq. 504,00, h 4,20 m oltre ad un ampio piazzale antistante di pertinenza esclusiva di Superficie Lorda commerciale pari a mq. 348,00.

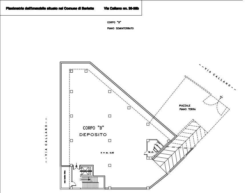
• LOCALE a Piano Seminterrato (Deposito) in via Callano nn. 36 - 38/B, di Superficie Lorda commerciale pari a mq. 617,00 e h 4,40 m, dotato di rampa di accesso indipendente ed autonoma comprensivo di sotto-rampa, oltre ad un ampio piazzale antistante di pertinenza esclusiva di Superficie Lorda commerciale pari a mq. 227,00.
I due locali, sovrastanti fra di loro, sono dotati di ampie superfici finestrate con apporto considerevole di luce naturale. Gli immobili, in ottime condizioni e mai usati, sono dotati di bagni di servizio distinti e separati, con rispettivi antibagno. I locali sono finiti e rifiniti in tutte le loro parti e sono completi di allacci idrico fognale, elettrici e telefonici (fibra ottica) nonché impianto antincendio.
I due locali sono collegati direttamente fra di loro mediante proprio ampio vano ascensore/montacarichi m. (2,40 x 2,70) e da corpo scala di collegamento dei tre livelli.
La struttura è realizzata interamente in opera (no elementi prefabbricati), solai doppio travetto con murature perimetrali a doppia muratura con camera d’aria isolante interposta, al fine di migliorarne l’efficienza energetica e quindi l’isolamento termico.
Locali ideali anche per: centri polifunzionali medici, fisioterapici, radiologici; commercio elettrodomestici, ricambistica; concessionaria auto, ecc.
Per detti locali vi è anche la possibilità di vendita di ulteriori locali posti al piano seminterrato, sottostanti in proiezione verticale (prezzo trattativa privata), nonché di uffici / appartamenti al piano Primo. Inoltre possibilità di vendita di lastrici solari per eventuale utilizzo posa pannelli fotovoltaici.

Prezzo complessivo di realizzo, al netto di sconto, pari a € 795.000,00.

Possibilità di acquisto anche di:
- area a parcheggio auto adiacente di mq. 660 circa;
-Appartamento sovrastante a Piano Primo;
-Lastrico solare esclusivo di mq. 350 circa.
- n. 2 Locali adiacenti posti si stesso livello: Rialzato 500 mq. circa e seminterrato mq. 600 circa.
No agenzie intermediarie - No perditempo – No Fitto.
Caratteristiche
Contratto
Vendita
Tipologia
Locale commerciale
Superficie
1.113 m² | commerciale 1.304,7 m²
Locali
2 locali, 2 bagni, doppio ingresso
Piano
Piano rialzato
Piani edificio
3
Altezza soffitti
4,2 m
Vetrine
2 vetrine su strada
Box, posti auto
1 in box privato/box in garage, 5 in parcheggio/garage comune
Disponibilità
Libero
Altre caratteristiche
  • Porta tagliafuoco
  • Posizione ad angolo
  • Saracinesche automatiche
  • Uscita emergenza
Dettaglio superficie

Negozio - Locale commerciale

Piano
Piano rialzato
Superficie
1.113,0 m²
Coefficiente
100%
Tipo superficie
Principale
Sup. commerciale
1.113,0 m²

Piazzale

Superficie
639,0 m²
Coefficiente
30%
Tipo superficie
Accessoria
Sup. commerciale
191,7 m²
Informazioni sul prezzo
Prezzo
€ 795.000
Prezzo al m²
609 €/m²
Dettaglio dei costi
Spese condominio
€ 30/mese
Efficienza energetica
  • Stato

    Nuovo / In costruzione
  • Riscaldamento

    Centralizzato
Planimetria
Scopri ogni angolo dell'immobile
+12
Inserzionista

Privato

Telefono

Opzioni aggiuntive

Contatta l'inserzionista

Privato

Telefono