Albergo in Vendita

€ 250.000
5+
440 m²
3+
1

Nota

Annuncio aggiornato il 17/09/2024
Descrizione

riferimento: 250_Alb_Pescatore

BORGO A MOZZANO - STRUTTURA RICETTIVA IN ZONA DI PASSAGGIO

PROPOSTA IN ESCLUSIVA CON INCARICO DI MEDIAZIONE FORMALMENTE ASSEGNATO ALL’AGENZIA
Nella zona di Borgo a Mozzano, su strada principale e vicino ad altre attività attrattive, proponiamo in vendita questa struttura ricettiva con 15 camere da letto, tutte dotate di bagno privato.
L'immobile è suddiviso in n°2 corpi, il primo, con accesso da strada principale posto al piano primo di fabbircato ad uso bar/ristorante dove sono presenti n° 9 camere da letto con bagno oltre reception al piano terra e grande soffitta ad uso magazzino al piano secondo mentre il secondo corpo di fabbrica si trova poco distante dal principale ed è elevato al solo piano terra dove sono presenti n°6 ulteriori camere con bagno.
Entrambi i fabbricati sono corredati da ampio parcheggio per la clientela , si presenta in buone condizioni ma necessitano di opere di ristrutturazione e ammodernamento.
Per richiedere ulteriori informazioni o concordare una visita chiamateci al numero 3397996540 o inviate una email a info@immobiliareilcastellaccio.it
PROPOSTA IN ESCLUSIVA CON INCARICO DI MEDIAZIONE FORMALMENTE ASSEGNATO ALL’AGENZIA
Se vuoi saperne di più, puoi parlare con Michele Paganelli.
Caratteristiche
Contratto
Vendita | Affitto con riscatto
Tipologia
Palazzo - Edificio | Classe immobile media
Superficie
440 m²
Locali
5+ locali, 3+ bagni - uno o più adatto a persone disabili
Piano
Piani edificio
1
Box, posti auto
30 in parcheggio/garage comune
Disponibilità
Libero
Uso edificio attuale
Albergo
Altre caratteristiche
  • 3 balconi
  • Esposizione doppia
  • Infissi esterni in doppio vetro / legno
  • Reception
Dettaglio superficie

Albergo o hotel

Piano
1
Superficie
440,0 m²
Coefficiente
100%
Tipo superficie
Principale
Sup. commerciale
440,0 m²
Informazioni sul prezzo
Prezzo
€ 250.000
Prezzo al m²
568 €/m²
New
Efficienza energetica

Consumo di energia

≥ 175 kWh/m² annoG

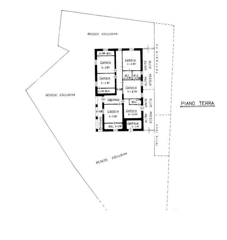
Planimetria
ALBERGO 1
ALBERGO 2
Virtual tour
Scopri ogni angolo dell'immobile
+14
Mutuo
%
Durata del mutuo

Rata da € 743 al mese

€ 75.000 (30%)

€ 175.000 (70%)

Vuoi un preventivo personalizzato e gratuito?

Opzioni aggiuntive

Contatta l'inserzionista

Oppure