Villa bifamiliare via Dell'Industria 12, Centro, Romano di Lombardia

€ 320.000
5
254 m²
3
No
Balcone

Nota

Annuncio aggiornato il 16/10/2025
Descrizione

riferimento: 60956578

Proponiamo in vendita una splendida villa bifamiliare, immersa in un ampio giardino di circa 500 mq, perfetta per chi cerca comfort e tranquillità. L'abitazione si sviluppa su più livelli, offrendo ampi spazi e una suddivisione degli ambienti pensata per la massima vivibilità.
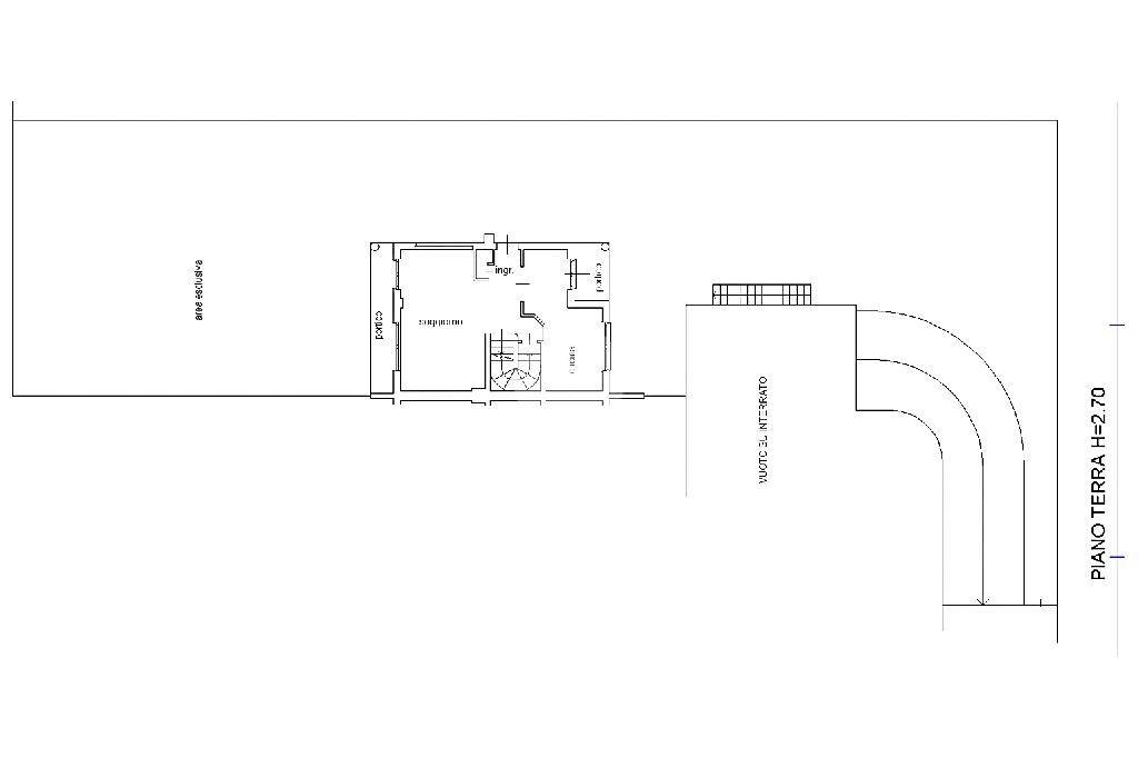
Al piano terra troviamo la zona giorno luminosa con cucina abitabile, zona pranzo e ampio soggiorno con camino a legna e sistema di aria canalizzata.
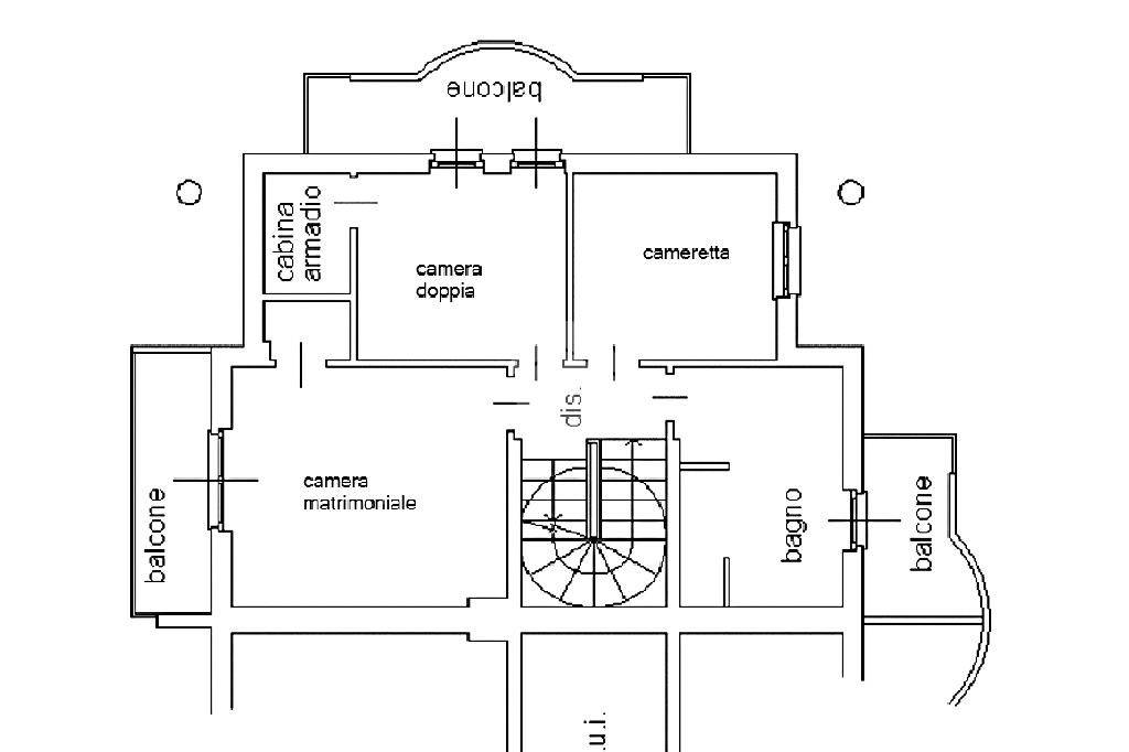
Tramite la scala interna, si accede al piano primo dove vi è la zona notte che ospita la camera matrimoniale con cabina armadio e balcone privato, una camera doppia anch'essa con cabina armadio e balcone, una camera singola ed infine il bagno padronale con doppi lavabi, vasca e accesso al balcone.
Il sottotetto completamente rifinito con travi a vista in legno è ideale come stanza per ospiti o area hobby ed è servito da un comodo bagno con doccia.
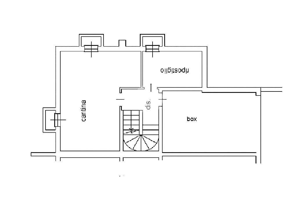
Al piano interrato vi è un accogliente taverna, una pratica lavanderia, il locale caldaia e comodo box auto.
Questa soluzione abitativa è perfetta per chi desidera ampi spazi, comfort e la possibilità di godersi momenti all'aria aperta nel grande giardino.
Se vuoi saperne di più, puoi parlare con Maurizio Vecchiarelli ..

Di solito risponde entro 1 giorno

Caratteristiche
Tipologia
Villa bifamiliare | Intera proprietà | Classe immobile signorile
Contratto
Vendita
Piano
2 piano
Piani edificio
2
Ascensore
No
Superficie
254 m²
Locali
5
Camere da letto
4
Cucina
Cucina abitabile
Bagni
3
Arredato
No
Balcone
Terrazzo
No
Box, posti auto
1 in box privato/box in garage, 1 in parcheggio/garage comune
Riscaldamento
Autonomo, a radiatori, alimentato a metano
Informazioni sul prezzo
Prezzo
€ 320.000
Prezzo al m²
1.260 €/m²
New
Dettaglio dei costi
Spese condominio
Nessuna spesa condominiale
Efficienza energetica

Consumo di energia

146.5 kWh/m² annoE

Planimetria
p-1
sottotetto
pt con foto
p1 con foto
Scopri ogni angolo dell'immobile
+19
Opzioni aggiuntive

Contatta l'inserzionista

Oppure