Capannone in Vendita

€ 120.000
290 m²
1

Nota

Annuncio aggiornato il 13/02/2025
Descrizione

riferimento: 60940979

Via G. Marconi - Rosate (MI)
Proponiamo in vendita un capannone, che presenta una superficie coperta di circa 290 MQ.
L'immobile è localizzato a ROSATE (MI), nell'area industriale del comune, in un contesto caratterizzato dalla presenza di immobili a destinazione perlopiù industriale/produttiva.
Ottima è la vicinanza alle arterie A50 «Tangenziale Ovest» e A7 «Autostrada dei Giovi», che mettono in comunicazione diretta la proprietà con il resto della Lombardia e le regioni del nord-Italia. Inoltre, posizione raggiungibile anche attraverso i mezzi pubblici: Bus 321 e Bus 352, che fermano a pochi metri di distanza.
Per ulteriori informazioni o per fissare una visita, chiamaci o passa a trovarci in Agenzia!
Le informazioni non costituiscono elemento contrattuale.
Ogni agenzia ha un proprio titolare ed è autonoma.
VALUTAZIONI GRATUITE!
Se vuoi saperne di più, puoi parlare con Affiliato Tecnocasa: Adr Impresa Ovest Srl.

Di solito risponde entro 1 giorno

Caratteristiche
Contratto
Vendita
Tipologia
Capannone
Superficie
290 m²
Locali
1 bagno
Piano
Piano terra, con accesso disabili
Piani edificio
1
Disponibilità
Libero
Dettaglio superficie

Capannone

Piano
Piano terra
Superficie
290,0 m²
Coefficiente
100%
Tipo superficie
Principale
Sup. commerciale
290,0 m²
Informazioni sul prezzo
Prezzo
€ 120.000
Prezzo al m²
414 €/m²
New
Dettaglio dei costi
Spese condominio
Nessuna spesa condominiale
Efficienza energetica

Consumo di energia

509.02 kWh/m² annoF

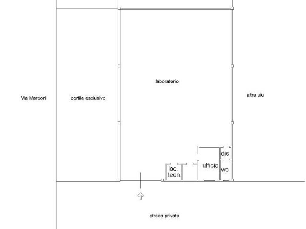
Planimetria
planimetria
Scopri ogni angolo dell'immobile
+18
Inserzionista
Affiliato Tecnocasa: Adr Impresa Ovest Srl

Affiliato Tecnocasa: Adr Impresa Ovest Srl

scheda agenzia
Opzioni aggiuntive

Contatta l'inserzionista

Oppure
Affiliato Tecnocasa: Adr Impresa Ovest Srl

Affiliato Tecnocasa: Adr Impresa Ovest Srl