Villa a schiera frazione plello 107/b, Plello, Borgosesia

€ 30.000
€ 35.000(-14,3%)
3
200 m²
2
No
Cantina

Nota

Annuncio aggiornato il 10/02/2026
Descrizione

riferimento: 3-BSPLE

Casa fine schiera in vendita a Borgosesia, frazione di Plello

Questa casa semi indipendente in vendita a Borgosesia si trova immersa nella natura nella tranquilla frazione di Plello.
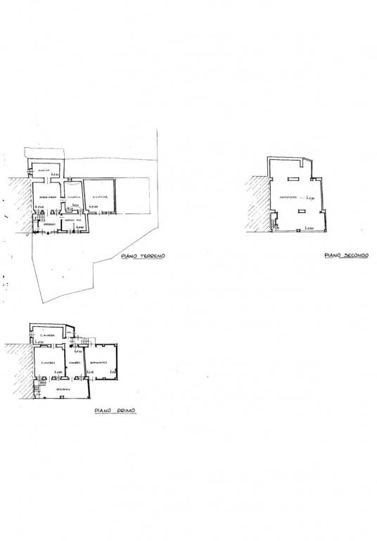
L'immobile si sviluppa su 3 livelli e si compone di:
- piano terra con ingresso in veranda, cucina, soggiorno, bagno e ripostiglio;
- secondo piano con veranda, 2 camere da letto e bagno;
- terzo piano con ampio sottotetto

La casa si presenta come un’occasione ideale per chi ama il fascino delle ristrutturazioni e sogna di trasformare uno spazio grezzo in un’accogliente dimora su misura. Disposta su più livelli, la proprietà offre ampie possibilità di redistribuzione degli spazi interni, permettendoti di creare ambienti luminosi e funzionali secondo le tue esigenze e i tuoi gusti personali. Qui puoi progettare una casa che unisce il calore di una residenza storica con la modernità e il comfort della vita contemporanea. All'esterno, un terreno ampio completa la proprietà, offrendo non solo una vista rilassante sulla campagna circostante, ma anche numerose possibilità di utilizzo. Puoi immaginare un giardino fiorito, un orto, o persino un’area ricreativa all’aperto per goderti le giornate di sole in totale privacy. Lo spazio esterno può diventare il tuo rifugio verde, perfetto per chi cerca una connessione più intima con la natura o desidera uno spazio dove trascorrere il tempo libero con la famiglia. Per maggiori informazioni non esitare a contattarci.
Caratteristiche
Tipologia
Villa a schiera | Intera proprietà | Classe immobile media
Contratto
Vendita
Piano
Piano terra
Piani edificio
2
Ascensore
No
Superficie
200 m²
Locali
3
Camere da letto
2
Cucina
Cucina abitabile
Bagni
2
Arredato
No
Balcone
No
Terrazzo
No
Box, posti auto
1 in box privato/box in garage, 1 in parcheggio/garage comune
Riscaldamento
Autonomo, a radiatori
Dettaglio superficie

Altro

Piano
Piano terra
Superficie
200,0 m²
Coefficiente
100%
Tipo superficie
Principale
Sup. commerciale
200,0 m²
Informazioni sul prezzo
Prezzo
€ 30.000
Prezzo al m²
150 €/m²
New
Dettaglio dei costi
Spese condominio
Nessuna spesa condominiale
Efficienza energetica

Consumo di energia

212 kWh/m² annoF

Planimetria
giacobini 2
Virtual tour
Scopri ogni angolo dell'immobile
+19
Opzioni aggiuntive

Contatta l'inserzionista

Oppure