Capannone in Vendita

€ 320.000
550 m²
2

Nota

Annuncio aggiornato il 17/10/2024
Descrizione

riferimento: 162/2024

CAPANNONE A REDDITO FELETTO UMBERTO

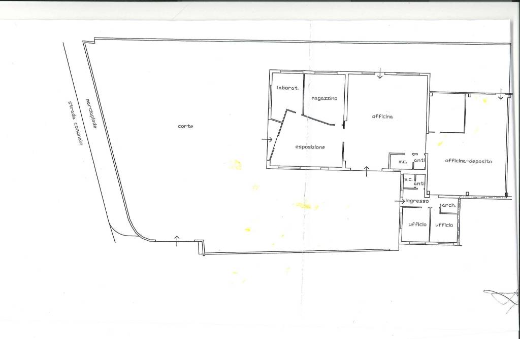
Vendesi CAPANNONE A REDDITO in zona artigianale - commerciale di Feletto tra viale Tricesimo e il centro del paese con forte passaggio di auto ed elevata visibilità. L'immobile è composto da 450 mq. coperti con accoglienza clienti, uffici e vendita, porzione di officina con vani accessori e servizi igienici. Scoperto di proprietà recintato di 850 mq. Attualmente l'immobile viene venduto a reddito, gli attuali inquilini sono presenti dal 2006 con contratto appena rinnovato fino al 2030. Rendita attuale del 8,4%.
Caratteristiche
Contratto
Vendita | Immobile a reddito
Tipologia
Capannone
Superficie
550 m²
Locali
2 bagni
Piano
Piano terra, con accesso disabili
Piani edificio
1
Box, posti auto
15 in parcheggio/garage comune
Altre caratteristiche
  • Impianto di allarme
  • Passo carrabile
  • Recintato
  • Spogliatoio
Dettaglio superficie

Laboratorio

Piano
Piano terra
Superficie
125,0 m²
Coefficiente
100%
Tipo superficie
Principale
Sup. commerciale
125,0 m²

Capannone

Piano
Piano terra
Superficie
270,0 m²
Coefficiente
100%
Tipo superficie
Principale
Sup. commerciale
270,0 m²

Ufficio o Studio

Piano
Piano terra
Superficie
60,0 m²
Coefficiente
100%
Tipo superficie
Principale
Sup. commerciale
60,0 m²

Piazzale

Piano
Piano terra
Superficie
950,0 m²
Coefficiente
10%
Tipo superficie
Principale
Sup. commerciale
95,0 m²
Informazioni sul prezzo
Prezzo
€ 320.000
Prezzo al m²
582 €/m²
New
Efficienza energetica

Consumo di energia

≥ 175 kWh/m² annoG

Planimetria
20241002144751771 1
Opzioni aggiuntive

Contatta l'inserzionista

Oppure