Rustico via Fara 4, Centro, Cassano d'Adda

€ 65.000
4
140 m²
No

Nota

Annuncio aggiornato il 06/02/2025
Descrizione

riferimento: 4820RC89853-MP01

Cassano d'Adda frazione Groppello in ampia corte proponiamo in vendita rustico su due livelli per complessivi 140 mq.
Ottima esposizione. Classe Energetica: Non soggetto
Caratteristiche
Tipologia
Rustico | Intera proprietà | Classe immobile economica
Contratto
Vendita
Piano
Piano terra
Piani edificio
1
Ascensore
No
Superficie
140 m²
Locali
4
Camere da letto
0
Arredato
No
Balcone
No
Terrazzo
No
Dettaglio superficie

Abitazione

Piano
Piano terra
Superficie
140,0 m²
Coefficiente
100%
Tipo superficie
Principale
Sup. commerciale
140,0 m²
Informazioni sul prezzo
Prezzo
€ 65.000
Prezzo al m²
464 €/m²
New
Efficienza energetica
  • Stato

    Da ristrutturare
  • Certificazione energetica

    Esente
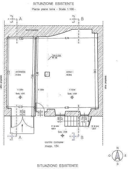
Planimetria
Foto
Foto
Foto
Foto
Foto
Scopri ogni angolo dell'immobile
+11
Opzioni aggiuntive

Contatta l'inserzionista

Oppure