Capannone in Affitto

€ 9.000/mese
3
2.050 m²
1

Nota

Zenso

Prestiti online e veloci

Confronta le offerte in 1 minuto

Annuncio aggiornato il 21/10/2024
Descrizione

riferimento: AA017-1

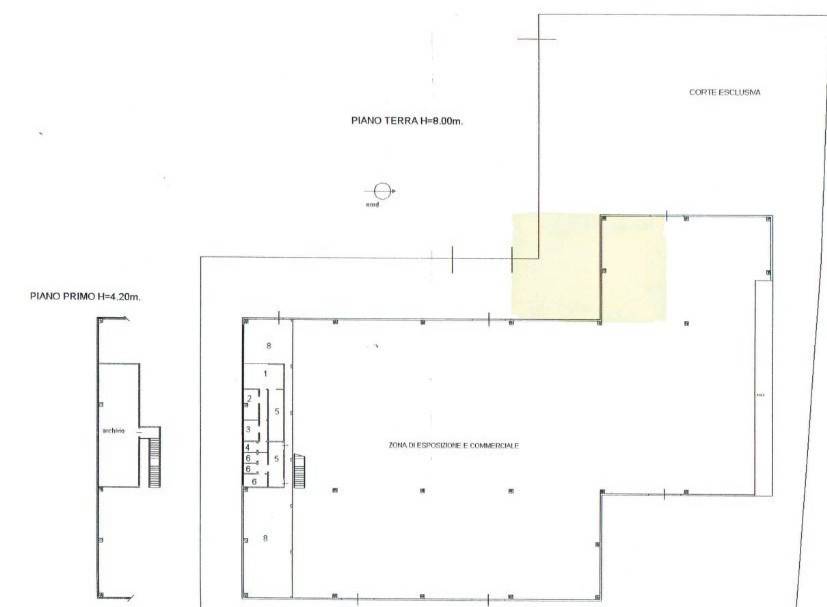
CAPANNONE AD USO COMMERCIALE

ARCOLE: proponiamo su lotto di 7.250mq asfaltato ed indipendente, capannone ad uso commerciale,
di 2.050mq altezza 8,00m con predisposizione carroponte, completo di riscaldamento, oltre a corpo uffici di 100mq.

Il gruppo che gestisce l'agenzia MyHome Immobiliare opera ormai da diversi anni sulle province di Vicenza e di Verona.
Grazie alla nostra esperienza e preparazione siamo in grado di fornire servizi immobiliari a 360°.
Il nostro team crede fortemente nell’etica professionale, e il nostro obbiettivo è quello di soddisfare le esigenze immobiliari con affidabilità, trasparenza e serietà.
Sei alla ricerca della tua nuova casa o vuoi vendere la tua abitazione?
Rivolgiti al nostro team di esperti.
Ti aspettiamo nelle nostri sedi ad Arzignano (VI) in Via Trieste 20 e a San Bonifacio (VR) in Piazza Costituzione 31.
Caratteristiche
Contratto
Affitto
Tipologia
Capannone
Superficie
2.050 m²
Locali
3 locali, 1 bagno
Piano
Piano terra
Piani edificio
1
Box, posti auto
1 in parcheggio/garage comune
Altezza capannone
8,1 m
Carroponti
1
Altre caratteristiche
  • Passo carrabile
Dettaglio superficie

Capannone

Piano
Piano terra
Superficie
2.050,0 m²
Coefficiente
100%
Tipo superficie
Principale
Sup. commerciale
2.050,0 m²
Informazioni sul prezzo
Prezzo
€ 9.000/mese
Prezzo al m²
4 €/m²
New
Dettaglio dei costi
Spese condominio
Nessuna spesa condominiale
Cauzione
Non indicata
Planimetria
Planimetria
Scopri ogni angolo dell'immobile
+3
Opzioni aggiuntive

Contatta l'inserzionista

Oppure