Terreno edificabile in Vendita

€ 200.000
1 m²

Nota

Annuncio aggiornato il 13/10/2025
Descrizione

riferimento: 703

Terreno edificabile in centro paese

TORREVECCHIA PIA: Situato in una posizione privilegiata di Torrevecchia Pia, comune ricco di servizi e ben collegato con Pavia e Milano. Scuole, negozi e aree verdi sono a breve distanza, garantendo un facile accesso a tutto ciò di cui si ha bisogno.
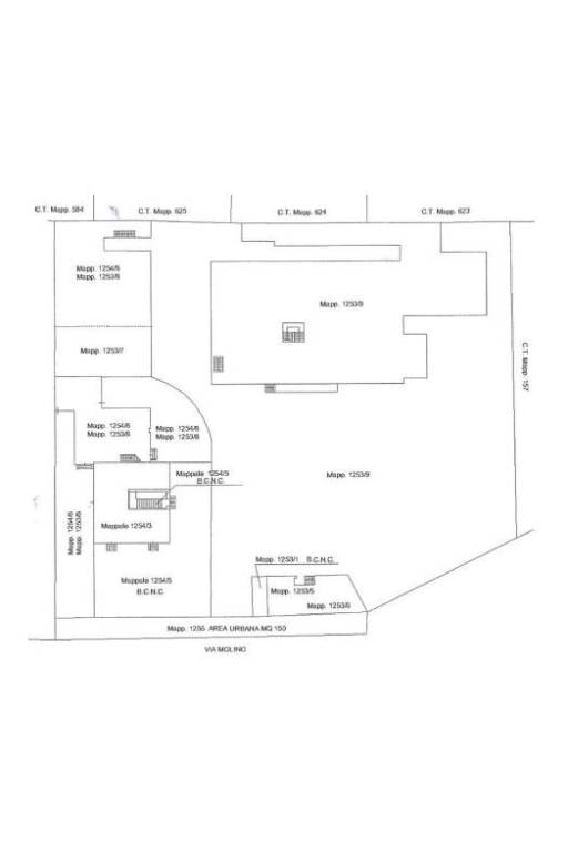
Proponiamo terreno edificabile di 5.000 metri cubi sfruttabili per poter costruire una palazzina o un complesso di villette.
Una parte sarà da demolire, ma inoltre c'è la possibilità di acquistare l'abitazione presente nella stessa proprietà per aumentare la cubatura.
Esente dalla certificazione energetica.
Per ulteriori informazioni o per fissare un appuntamento per visionare la proprietà potete contattarci allo 0382/696462 oppure al 327/2978610. (Rif. 703)
Se vuoi saperne di più, puoi parlare con Arturo Elia.
Caratteristiche
Contratto
Vendita
Tipologia
Terreno edificabile
Superficie
1 m²
Disponibilità
Libero
Qualificazione urbanistica
Unità multiple
Dislivello terreno
Leggero
Altezza massima edificabile
9 m
Accesso in strada/servitù di passaggio
In strada asfaltata
Altre caratteristiche
  • Allaccio acqua
  • Allaccio elettricità
  • Allaccio fogne
  • Allaccio gas
  • Recintato
Informazioni sul prezzo
Prezzo
€ 200.000
Prezzo al m²
200.000 €/m²
New
Planimetria
Plan1
Scopri ogni angolo dell'immobile
+15
Inserzionista
scheda agenzia
Opzioni aggiuntive

Contatta l'inserzionista

Oppure