Ufficio - Studio in Vendita

€ 480.000
3
600 m²
3
1

Nota

Annuncio aggiornato il 02/07/2025
Descrizione

riferimento: CBI081-751-1438

Ufficio in vendita a Curno

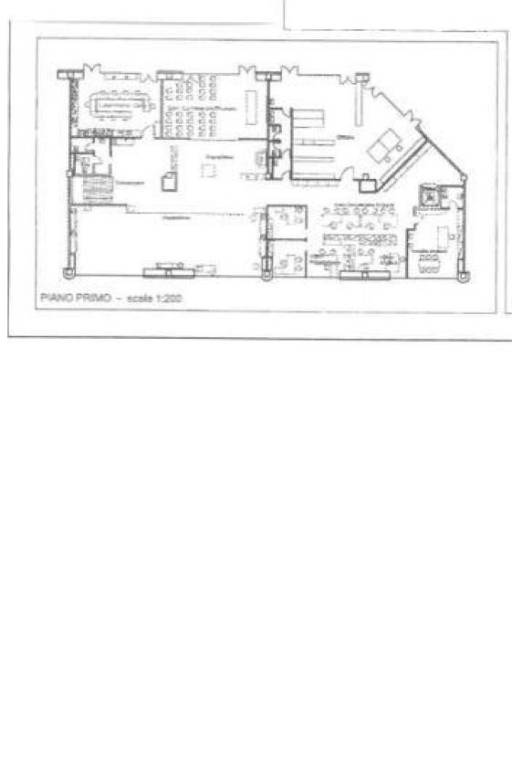
A Curno lungo la Briantea, via di grande passaggio automobilistico, proponiamo in vendita ufficio posto al primo e ultimo piano di 600 mq su unico livello. L'immobile è in buone condizioni ed è dotato di un ampio parcheggio.
Nella via ci sono altri grossi brand tra cui: OBI, ESSELUNGA, TOYOTA, KFC, MC DONALD, GABEL , CONBIPEL (proprio di fronte), ARCAPLANET, MONDO CONVENIENZA.

Per maggiori informazioni, contattateci al numero 035 219571.
Se vuoi saperne di più, puoi parlare con Emanuele Locatelli.
Caratteristiche
Contratto
Vendita
Tipologia
Ufficio - Studio | Classe immobile signorile
Superficie
600 m²
Locali
3 locali, 3 bagni - uno o più adatto a persone disabili
Disposizione Interni
Open space
Piano
1°, con accesso disabili
Piani edificio
2
Disponibilità
Libero
Altre caratteristiche
  • Antincendio a idranti
  • Cablato
  • Controsoffitto
  • Esposizione esterna
  • Infissi esterni in vetro / metallo
  • Internet a banda larga
  • Parcheggio bici
  • Pavimento flottante
Dettaglio superficie

Ufficio o Studio

Piano
1
Superficie
600,0 m²
Coefficiente
100%
Tipo superficie
Principale
Sup. commerciale
600,0 m²
Informazioni sul prezzo
Prezzo
€ 480.000
Prezzo al m²
800 €/m²
New
Dettaglio dei costi
Spese condominio
Nessuna spesa condominiale
Efficienza energetica

Consumo di energia

323.27 kWh/m² annoC

Planimetria
planimetria
Scopri ogni angolo dell'immobile
+6
Opzioni aggiuntive

Contatta l'inserzionista

Oppure