Locale commerciale in Vendita

€ 45.000
61 m²
1

Nota

Annuncio aggiornato il 02/09/2025
Descrizione

riferimento: 60971264

BAGNOLO IN PIANO-
Proponiamo a Bagnolo in piano all'interno del centro commerciale 'Il Multiplo' in cui sono presenti diverse attività commerciali e un grande parcheggio pubblico .
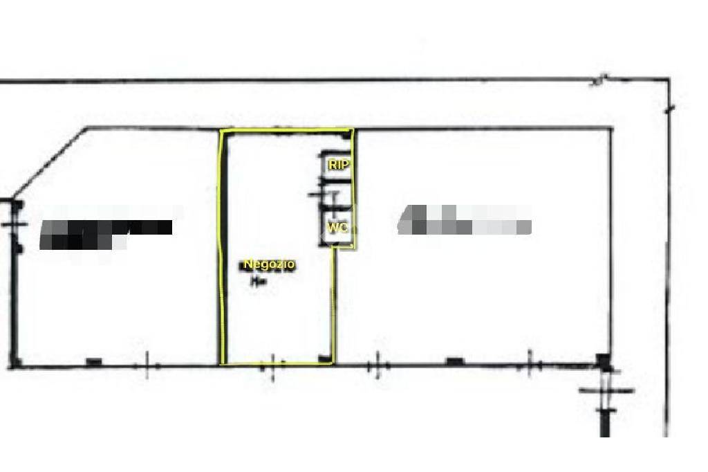
Negozio di 61 mq con ripostiglio, bagno e antibagno.
L'immobile gode di vetrina interna al centro commerciale più due vetrine fronte strada.
LIBERO E PRONTO ALL'USO.
PER AVERE MAGGIORI INFORMAZIONI O PRENOTARE LA TUA VISITA PRIVATA CONTATTACI AI SEGUENTI NUMERI 3457186940 o 05221965332.
Se vuoi saperne di più, puoi parlare con Piero Ruffino ..

Di solito risponde entro 1 giorno

Caratteristiche
Contratto
Vendita
Tipologia
Locale commerciale
Superficie
61 m²
Locali
1 bagno
Box, posti auto
6 in box privato/box in garage, 6 in parcheggio/garage comune
Disponibilità
Libero
Informazioni sul prezzo
Prezzo
€ 45.000
Prezzo al m²
738 €/m²
New
Dettaglio dei costi
Spese condominio
Nessuna spesa condominiale
Efficienza energetica

Consumo di energia

F

Planimetria
Planimetria
Scopri ogni angolo dell'immobile
+6
Opzioni aggiuntive

Contatta l'inserzionista

Oppure