Locale commerciale in Vendita

€ 70.000
1
285 m²
1
T

Nota

Annuncio aggiornato il 15/05/2025
Descrizione

riferimento: Loc Cortemilia

Locale Commerciale Ristrutturato

Cortemilia - Corso Einaudi: Locale commerciale di circa 290 Mq, sito al piano terra su Corso Principale. Completamente ristrutturato con esposizione angolare a 9 vetrine e doppio ingresso. L'immobile è dotato anche di sistema di video sorveglianza a circuito chiuso. Riscaldamento e raffrescamento con sistema di canalizzazione a controsoffitto e sfiato da bocchette. All'esterno vi è anche un comodo parcheggio per la clientela e il locale si può adibire a molte attività commerciali. Ubicazione di Cortemilia a 35 minuti di auto da Monforte d'Alba (CN).
Se vuoi saperne di più, puoi parlare con Luca Riggio.
Caratteristiche
Contratto
Vendita | Affitto con riscatto
Tipologia
Locale commerciale
Superficie
285 m²
Locali
1 locale, 1 bagno, doppio ingresso
Piano
Piano terra, con accesso disabili
Piani edificio
4
Vetrine
9 vetrine su strada
Ultima attività svolta
Negozio di casalinghi
Disponibilità
Libero
Altre caratteristiche
  • Cablato
  • Impianto di allarme
  • Posizione ad angolo
  • Rilevatori antincendio
  • Saracinesche manuali
  • Vigilanza CCTV
  • Esposizione sud, est, sud-est
Dettaglio superficie

Negozio - Locale commerciale

Piano
Piano terra
Superficie
285,0 m²
Coefficiente
100%
Tipo superficie
Principale
Sup. commerciale
285,0 m²
Informazioni sul prezzo
Prezzo
€ 70.000
Prezzo al m²
246 €/m²
New
Efficienza energetica

Consumo di energia

≥ 175 kWh/m² annoG

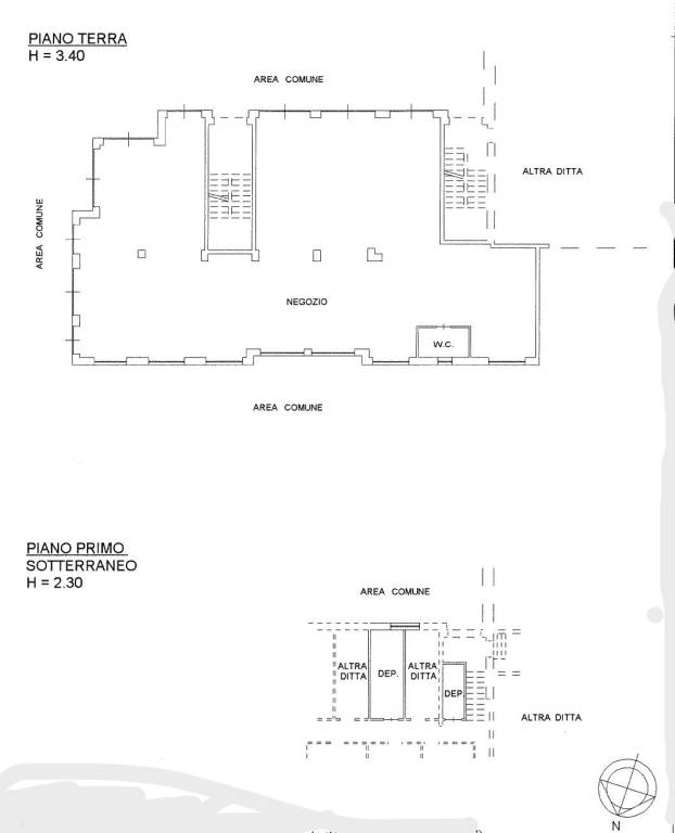
Planimetria
doc05268620241031104147_page-0001
Scopri ogni angolo dell'immobile
+10
Opzioni aggiuntive

Contatta l'inserzionista

Oppure