Palazzo - Edificio in Vendita

€ 230.000
5+
240 m²
3+

Nota

Annuncio aggiornato il 11/02/2025
Descrizione

riferimento: P41

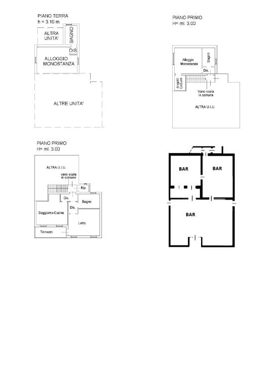
BAR ED APPARTAMENTI IN VENDITA A PORTO TOLLE

DOMA AGENTI IMMOBILIARI propone in vendita a Porto Tolle a pochi passi dal centro, tre appartamenti con garage e locale adibito a locale commerciale.
Gli immobili vengono proposti in blocco e si distinguono come segue:
- Appartamento monolocale di 30mq, al piano terra, con garage, viene proposto arredato. C.L ”F ” IPE 204,65 kWh/m² anno.
- Appartamento monolocale di 30mq, con cucinino, al primo piano, con garage, viene proposto arredato. C.L ”G” IPE 243,38 kWh/m² anno.
- Appartamento bilocale di 50mq al primo piano, arredato, composto da ingresso, soggiorno con cucina a vista, camera matrimoniale con comodo balcone, bagno e garage. C.L ”G” IPE 178,91 kWh/m² anno.
- Locale commerciale (non cessione d'azienda), composto da due locali, bagno e ampia veranda con pannelli solari che generano un ulteriore rendita, per un totale di 130 mq. C.L ”E” IPE 489,08 kWh/m² anno.
La soluzione è ideale per chi desidera fare un investimento, in quanto attualmente locati con rendita mensile e grazie alla sua posizione a pochi chilometri dalle località balneari.

DOMA AGENTI IMMOBILIARI
VIA ROMA 5 - 45014 PORTO VIRO (RO)
0426.748067
www.agentidoma.it
VISITA IL NOSTRO SITO E SCOPRI TUTTE LE NOSTRE PROPOSTE IMMOBILIARI E COMMERCIALI.
Se vuoi saperne di più, puoi parlare con DOMA AGENTI IMMOBILIARI.
Caratteristiche
Contratto
Vendita | Immobile a reddito
Tipologia
Palazzo - Edificio | Classe immobile media
Superficie
240 m²
Locali
5+ locali, 3+ bagni
Piano
2 piani: Piano terra, 1°, con accesso disabili
Piani edificio
2
Box, posti auto
3 in box privato/box in garage
Disponibilità
Libero
Uso edificio attuale
Residenziale
Altre caratteristiche
  • 1 balcone
  • Esposizione esterna
  • Infissi esterni in doppio vetro / legno
Dettaglio superficie

Negozio - Locale commerciale

Piano
Piano terra
Superficie
130,0 m²
Coefficiente
100%
Tipo superficie
Principale
Sup. commerciale
130,0 m²

Appartamento

Piano
Piano terra
Superficie
30,0 m²
Coefficiente
100%
Tipo superficie
Principale
Sup. commerciale
30,0 m²

Appartamento

Piano
1
Superficie
50,0 m²
Coefficiente
100%
Tipo superficie
Principale
Sup. commerciale
50,0 m²

Appartamento

Piano
1
Superficie
30,0 m²
Coefficiente
100%
Tipo superficie
Principale
Sup. commerciale
30,0 m²
Informazioni sul prezzo
Prezzo
€ 230.000
Prezzo al m²
958 €/m²
New
Efficienza energetica

Consumo di energia

≥ 3,51 kWh/m² annoG

Planimetria
PLANIMETRIA COMPLETA
Scopri ogni angolo dell'immobile
+17
Inserzionista
scheda agenzia
Mutuo
%
Durata del mutuo

Rata da € 683 al mese

€ 69.000 (30%)

€ 161.000 (70%)

Vuoi un preventivo personalizzato e gratuito?

Opzioni aggiuntive

Contatta l'inserzionista

Oppure