Trilocale da ristrutturare, piano terra, Toscanella, Dozza

€ 135.000
3
95 m²
2
Terrazzo
Cantina

Nota

Annuncio aggiornato il 10/03/2025
Descrizione

riferimento: Immobile Toscanella

Appartamento da trasformare

A Toscanella, in palazzina recente e ben tenuta in pietravista, disponibile immobile in interno silenzioso e tranquillo, attualmente uso ufficio, pronto per questo uso, ma volendo trasformabile in appartamento, con cambio di destinazione d'uso.
L'ambiente è attualmente open space, divisibile in soggiorno con cucina a vista, camera, studio e bagno. Dotato di scoperto esclusivo pavimentato.
Accesso con scala interna a zona interrata con ampio garage.
Maggiori informazioni previo contatto telefonico
Caratteristiche
Tipologia
Appartamento | Intera proprietà | Classe immobile media
Contratto
Vendita
Piano
Interrato (-1), piano terra
Piani edificio
3
Superficie
95 m²
Locali
3
Camere da letto
2
Cucina
Cucina angolo cottura
Bagni
2
Arredato
No
Terrazzo
Box, posti auto
2 in box privato/box in garage
Riscaldamento
Autonomo
Altre caratteristiche
  • Esposizione doppia
Dettaglio superficie

Abitazione

Piano
Piano terra
Superficie
70,0 m²
Coefficiente
100%
Tipo superficie
Principale
Sup. commerciale
70,0 m²

Terrazzo

Piano
Piano terra
Superficie
25,0 m²
Coefficiente
30%
Tipo superficie
Principale
Sup. commerciale
7,5 m²

Box o garage

Piano
Interrato (-1)
Superficie
35,0 m²
Coefficiente
50%
Tipo superficie
Principale
Sup. commerciale
17,5 m²
Informazioni sul prezzo
Prezzo
€ 135.000
Prezzo al m²
1.421 €/m²
New
Efficienza energetica

Consumo di energia

≥ 3,51 kWh/m² annoF

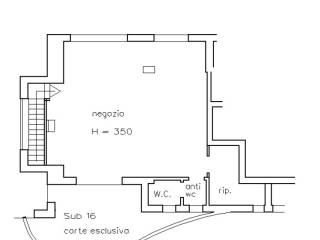
Planimetria
Plan negozio appartamento pubb
Plan Garage Pubb
PROG APP PUBB
Scopri ogni angolo dell'immobile
+9
Mutuo
%
Durata del mutuo

Rata da € 401 al mese

€ 40.500 (30%)

€ 94.500 (70%)

Vuoi sapere che mutuo puoi richiedere?

Opzioni aggiuntive

Contatta l'inserzionista

Oppure