Terreno agricolo in Vendita

€ 29.000
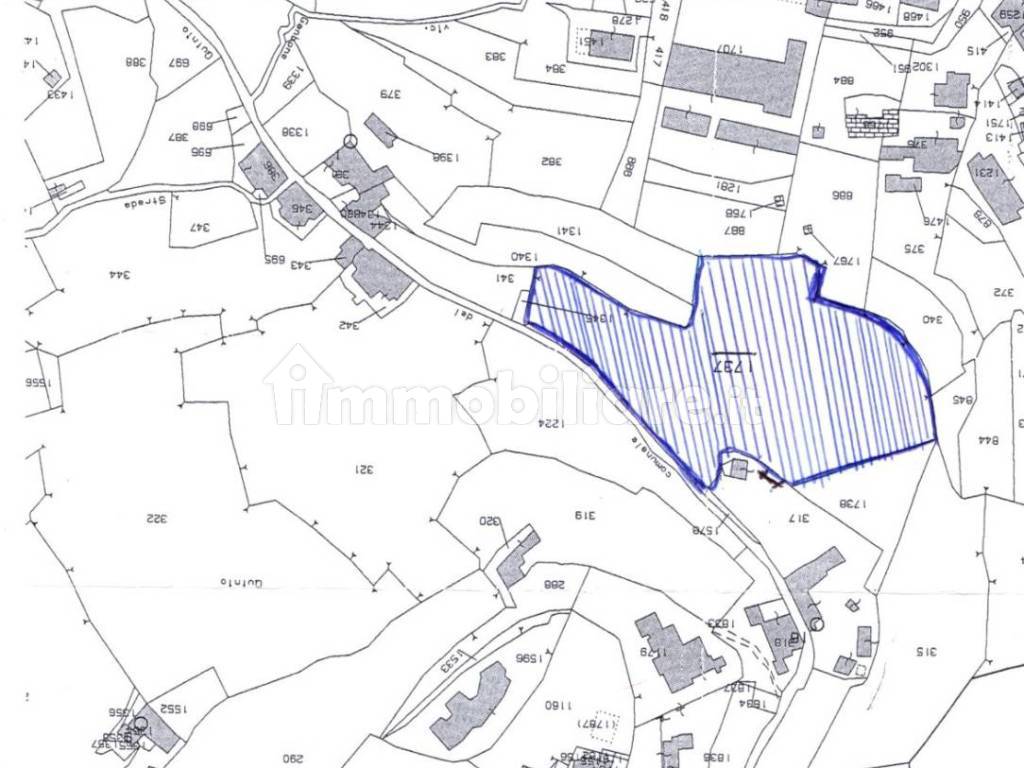
5.169 m²

Nota

Annuncio aggiornato il 05/09/2025
Descrizione

riferimento: 7/21

Bellissimo terreno agricolo in vendita! Questo terreno si trova in una posizione comoda e ha una superficie di 5.169 metri quadrati. Ci sono ulivi che producono un reddito dominicale di 17,35 euro e un reddito agricolo di 14,68 euro. La superficie totale del terreno è di 5.169 metri quadrati ed è situato a pochi km dal centro abitato più vicino. Non edificabile, ma perfetto per l'agricoltura. Non perdere l'opportunità di acquistare questo terreno unico!
Se vuoi saperne di più, puoi parlare con Elena Monaco.
Caratteristiche
Contratto
Vendita
Tipologia
Terreno Agricolo
Superficie
5.169 m²
Disponibilità
Libero
Informazioni sul prezzo
Prezzo
€ 29.000
Prezzo al m²
6 €/m²
New
Planimetria
Planimetria 1
Scopri ogni angolo dell'immobile
+7
Opzioni aggiuntive

Contatta l'inserzionista

Oppure