Locale commerciale in Vendita

€ 35.000
2
38 m²
1
T

Nota

Annuncio aggiornato il 05/11/2025
Descrizione

riferimento: EK-116133757

Negozio, forte passaggio, riscaldamento autonomo

VENDUTO
VENDUTO
VENDUTO
Se.... se potessi tornare indietro nel tempo, una delle cose che farei sarebbe un mutuo per
comprare un locale dove mettere la mia agenzia, mamma mia quanti soldi di affitto che ho speso,
tre negozi avrei comprato con quei soldi, certo, allora non c'era niente in vendita, ma oggi SI',
eccone uno, con il riscaldamento AUTONOMO, poche spese di condominio,
una bella VETRINA dove poter pubblicizzare i miei prodotti,
in posizione CENTRALE con forte PASSAGGIO di persone e macchine,
con zone di PARCHEGGIO vicine per i clienti, con i CANCELLI di sicurezza che fanno vedere cosa vendi anche quando sei chiuso o di sera.
Aaaa chissà cosa costerà, di certo non è gratis, ma fai un calcolo di quanto viene la rata al mese e vedrai subito che è meno di un affitto e fra 15/20 anni avrai già finito di pagarlo e non avrai più affitti da pagare. Al massimo se cambi mestiere lo affitti.
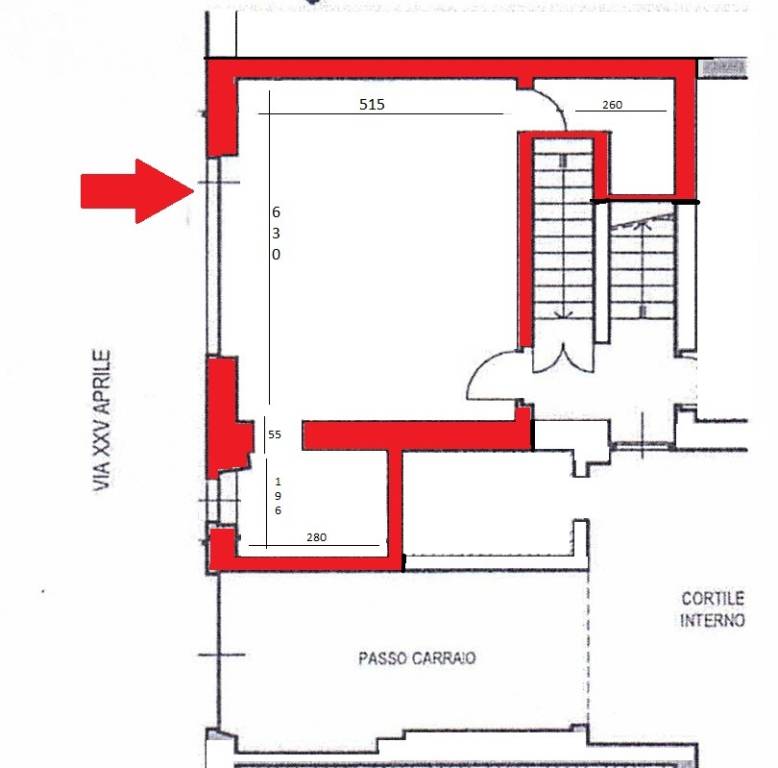
Comunque quello che vendo è un locale uso negozio (C/1) con ampio spazio per la vendita, un retro che potrebbe essere un bagno o una cucinotta o altro, una zona archivio ed un WC esterno in cortile del quale ha l'uso con altra unità che non usa mai in quanto ne ha già uno interno.
Fra l'altro l'immobile è in ordine sia in Comune, sia al Catasto e pronto per la perizia bancaria.
No canna fumaria. Spese condominiali €. 50,00 mensili circa.
Da ristrutturare.
Caratteristiche
Contratto
Vendita
Tipologia
Locale commerciale
Superficie
38 m²
Locali
2 locali, 1 bagno, doppio ingresso
Piano
Piano terra, con accesso disabili
Piani edificio
3
Altezza soffitti
3 m
Vetrine
1 vetrina su strada, 3 m lineari
Disponibilità
Libero
Altre caratteristiche
  • Passo carrabile
  • Saracinesche manuali
  • Esposizione sud-ovest
Dettaglio superficie

Negozio - Locale commerciale

Piano
Piano terra
Superficie
38,0 m²
Coefficiente
100%
Tipo superficie
Principale
Sup. commerciale
38,0 m²
Informazioni sul prezzo
Prezzo
€ 35.000
Prezzo al m²
921 €/m²
New
Dettaglio dei costi
Spese condominio
€ 50/mese
Efficienza energetica

Consumo di energia

123.99 kWh/m² annoF

Planimetria
NEGOZIO RILIEVO
PLANIMETRIA PUBB
Scopri ogni angolo dell'immobile
+26
Opzioni aggiuntive

Contatta l'inserzionista

Oppure