Appartamento via Terralba 22, Centro, Arenzano

€ 470.000
5+
108 m²
2
T
Terrazzo
Arredato

Nota

Annuncio aggiornato il 28/08/2025
Descrizione

riferimento: 1210-18011

Appartamento in vendita a Arenzano

NUOVO PREZZO: Splendida Casa Ristrutturata in Arenzano

In posizione privilegiata ad Arenzano, proponiamo in vendita un'elegante abitazione recentemente ristrutturata, che si distingue per la sua comodità e funzionalità. Situata a pochi passi da tutti i principali servizi, tra cui supermercati e la stazione ferroviaria, questa casa rappresenta la scelta ideale per famiglie o professionisti in cerca di un ambiente tranquillo ma ben collegato.

L'immobile è composto da due spaziose camere da letto, due moderni bagni e un'ampia cucina, perfettamente attrezzata per soddisfare ogni esigenza culinaria. Il luminoso salone offre uno spazio accogliente per il relax e l'intrattenimento, mentre il terrazzo e il giardino privato costituiscono un'ottima soluzione per godere di momenti all'aria aperta, in un contesto riservato e rilassante.

Completa la proprietà un ampio box auto, che garantisce comodità e sicurezza per il parcheggio dei vostri veicoli.

Non perdere l'opportunità di visitare questa meravigliosa casa che combina eleganza, comfort e praticità in una delle località più affascinanti della costa ligure.
Se vuoi saperne di più, puoi parlare con Rita Vernazza.
Caratteristiche
Tipologia
Appartamento | Intera proprietà | Classe immobile media
Contratto
Vendita
Piano
Piano terra
Piani edificio
3
Ascensore
Superficie
108 m²
Locali
5+
Camere da letto
2
Cucina
Cucina abitabile
Bagni
2
Arredato
Balcone
No
Terrazzo
Box, posti auto
1 in box privato/box in garage
Riscaldamento
Autonomo, a radiatori, alimentato a metano
Climatizzazione
Autonomo, freddo/caldo
Altre caratteristiche
  • Armadio a muro
  • Esposizione doppia
  • Idromassaggio
  • Infissi esterni in doppio vetro / PVC
  • Porta blindata
  • Impianto tv singolo
  • VideoCitofono
Dettaglio superficie

Abitazione

Piano
Piano terra
Superficie
108,0 m²
Coefficiente
100%
Tipo superficie
Principale
Sup. commerciale
108,0 m²
Informazioni sul prezzo
Prezzo
€ 470.000
Prezzo al m²
4.352 €/m²
New
Dettaglio dei costi
Spese condominio
€ 150/mese
Efficienza energetica

Consumo di energia

164.09 kWh/m² annoD

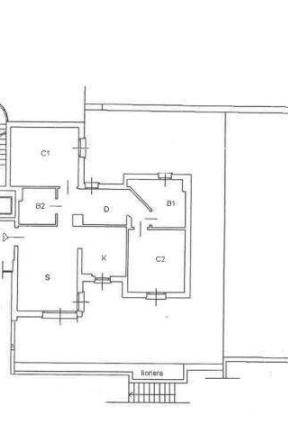
Planimetria
Foto 71
Virtual tour
Scopri ogni angolo dell'immobile
+37
Mutuo
%
Durata del mutuo

Rata da € 1.396 al mese

€ 141.000 (30%)

€ 329.000 (70%)

Vuoi sapere che mutuo puoi richiedere?

Opzioni aggiuntive

Contatta l'inserzionista

Oppure