map icon

Palazzo - Edificio in Vendita

BronteCortile Pirandello 21
€ 140.000
200 m²
T

Nota

Annuncio aggiornato il 08/05/2025
Descrizione

riferimento: 42959156-39

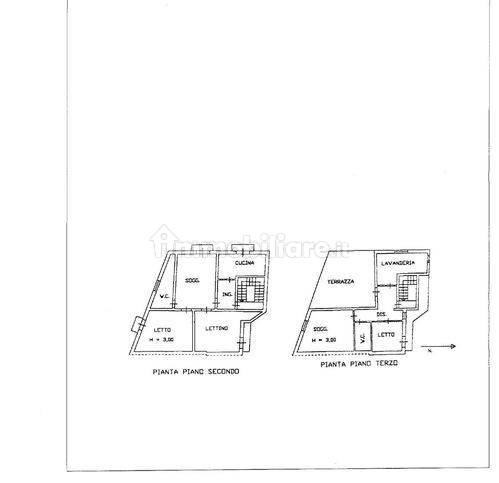
Edificio in Vendita in Cortile Pirandello 21 a Bronte

Edificio residenziale composto da: un Appartamento su due piani composto da 5 vani catastali. con ingresso dal Cortile Pirandello n 21 e 22; appartamento ai piani secondo e terzo, composto da 7,5 vani catastali, con ingresso da Cortile Pirandello n 22. Il terrazzo offre uno spazio all'aperto ideale per rilassarsi e godere della vista. Il prezzo richiesto è di €. 140.000, 00, trattabili, una grande opportunità per chi cerca una casa da ristrutturare e creare la propria. Non perdere questa occasione unica nel suo genere!
Se vuoi saperne di più, puoi parlare con Marisa Caruso.
Caratteristiche
Contratto
Vendita
Tipologia
Palazzo - Edificio
Superficie
200 m²
Piano
Piano terra
Piani edificio
1
Dettaglio superficie

Appartamento

Piano
Piano terra
Superficie
200,0 m²
Coefficiente
100%
Tipo superficie
Principale
Sup. commerciale
200,0 m²
Informazioni sul prezzo
Prezzo
€ 140.000
Prezzo al m²
700 €/m²
New
Efficienza energetica

Consumo di energia

971 kWh/m² annoG

Scopri ogni angolo dell'immobile
+22
Mutuo
%
Durata del mutuo

Rata da € 416 al mese

€ 42.000 (30%)

€ 98.000 (70%)

Vuoi un preventivo personalizzato e gratuito?

Opzioni aggiuntive

Contatta l'inserzionista

Oppure