Terratetto plurifamiliare 230 m², da ristrutturare, Centro Storico, Forlì

€ 250.000
5+
230 m²
3+
Balcone
Terrazzo
Cantina

Nota

Annuncio aggiornato il 18/11/2024
Descrizione

riferimento: CS-397

Casa indipendente nel cuore di Forlì

Situata in una posizione privilegiata, nel pieno centro di Forlì ma comodamente collegata alle principali vie di comunicazione, questa esclusiva casa indipendente offre spazi ampi e versatili, con infinite possibilità di personalizzazione. L'edificio, recentemente ristrutturato nelle superfici esterne, vanta facciate con cappotto termico e un tetto nuovo, garantendo efficienza energetica e stile. Gli interni, attualmente allo stato grezzo, offrono l’opportunità unica di creare una casa su misura, secondo i propri gusti ed esigenze. Caratteristiche principali: Piano terra: Ampie sale luminose e una cucina abitabile che si affaccia su una deliziosa corte interna privata, perfetta per momenti di relax all’aperto. Zona notte: Tre spaziose camere da letto matrimoniali, ognuna con bagno privato e cabina armadio. Spazi extra: Un elegante vano relax e un piano seminterrato che ospita la centrale termica, una cantina/dispensa e una caratteristica taverna rustica, ideale per cene conviviali. Piano superiore: Uno spettacolare terrazzo solarium con vista panoramica sulla città di Forlì, perfetto per godersi il tramonto o organizzare eventi all'aperto. Questa proprietà unica è la soluzione ideale per chi cerca una casa indipendente in centro città, con il fascino della personalizzazione e il comfort della modernità.
Caratteristiche
Tipologia
Terratetto plurifamiliare | Intera proprietà | Classe immobile signorile
Contratto
Vendita
Piano
Piano rialzato
Piani edificio
2
Superficie
230 m²
Locali
5+
Camere da letto
3
Cucina
Cucina abitabile
Bagni
3+
Balcone
Terrazzo
Altre caratteristiche
  • Caminetto
  • Mansarda
  • Taverna
Dettaglio superficie

Abitazione

Piano
Piano rialzato
Superficie
230,0 m²
Coefficiente
100%
Tipo superficie
Principale
Sup. commerciale
230,0 m²
Informazioni sul prezzo
Prezzo
€ 250.000
Prezzo al m²
1.087 €/m²
New
Efficienza energetica
  • Anno di costruzione

    1900
  • Stato

    Da ristrutturare
  • Certificazione energetica

    In attesa di certificazione
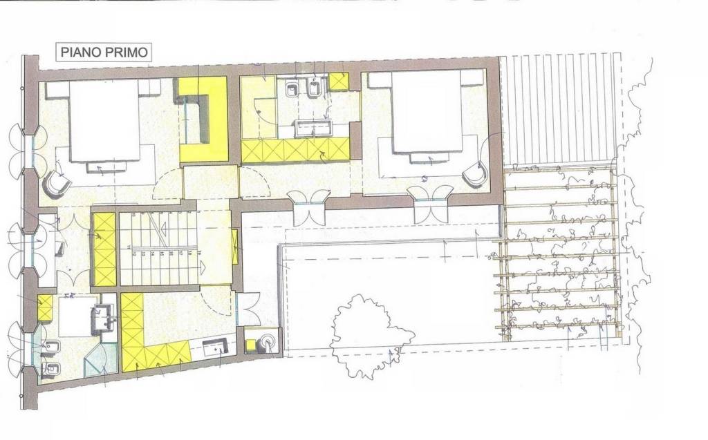
Planimetria
A pianta (4)
A pianta (3)
A pianta (2)
A pianta (1)
Scopri ogni angolo dell'immobile
+19
Mutuo
%
Durata del mutuo

Rata da € 743 al mese

€ 75.000 (30%)

€ 175.000 (70%)

Vuoi sapere che mutuo puoi richiedere?

Opzioni aggiuntive

Contatta l'inserzionista

Oppure