Terratetto unifamiliare via Oro, 15, Indiprete, Castelpetroso

€ 19.500
5+
201 m²
1
No
Cantina

Nota

Annuncio aggiornato il 18/11/2024
Descrizione

riferimento: Casa Indiprete (2534564)

Casa semindipendente a Castelpetroso

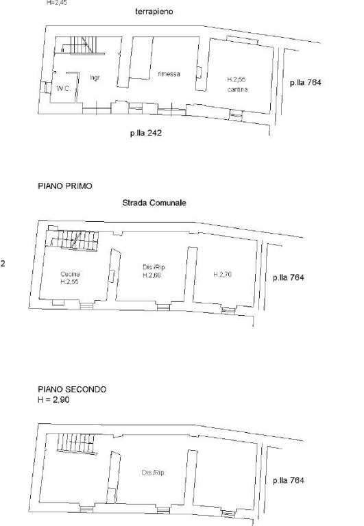
Questa casa semi-indipendente, con una superficie di 201 mq, si trova nel pittoresco borgo di Castelpetroso, un affascinante paese del Molise, celebre per la Basilica della Madonna Addolorata, meta di numerosi pellegrini. La proprietà è situata lungo la via che conduce al cuore del paese, con una posizione strategica che consente di godere di una vista panoramica mozzafiato sulla campagna circostante. La casa si sviluppa su tre livelli, con spazi ampi e ben organizzati, ideale per una famiglia o come investimento turistico. Al piano terra troviamo un ingresso spazioso che conduce a una cantina, perfetta per la conservazione di vini e prodotti locali. Inoltre, è presente una rimessa, utile per il parcheggio di motoveicoli o come deposito, e un bagno di servizio, comodo per gli ospiti o per le esigenze quotidiane. Salendo al primo livello, l'ambiente è luminoso e accogliente, con una cucina abitabile che si affaccia su una sala da pranzo. Il soggiorno è ideale per momenti di convivialità e relax. Il secondo livello ospita tre camere da letto, tutte ampie e dotate di finestre che permettono di godere della luce naturale e di una vista aperta sulla campagna circostante. Le stanze, accoglienti e funzionali, offrono comfort e tranquillità, ideali per il riposo dopo una giornata trascorsa esplorando la zona. La casa è assolata per gran parte della giornata grazie alla sua posizione panoramica, che la rende particolarmente gradevole durante i mesi più caldi. La vista sulla valle circostante è un valore aggiunto che rende questa proprietà ancora più suggestiva.
Se vuoi saperne di più, puoi parlare con Vincenzo Stefanelli.
Caratteristiche
Tipologia
Terratetto unifamiliare | Intera proprietà | Classe immobile media
Contratto
Vendita
Piano
Piano terra
Piani edificio
3
Ascensore
No
Superficie
201 m²
Locali
5+
Camere da letto
3
Cucina
Cucina abitabile
Bagni
1
Arredato
No
Balcone
No
Terrazzo
No
Altre caratteristiche
  • Caminetto
  • Esposizione esterna
  • Infissi esterni in vetro / legno
  • Mansarda
  • Impianto tv singolo
Dettaglio superficie

Abitazione

Piano
Piano terra
Superficie
201,0 m²
Coefficiente
100%
Tipo superficie
Principale
Sup. commerciale
201,0 m²
Informazioni sul prezzo
Prezzo
€ 19.500
Prezzo al m²
97 €/m²
New
Dettaglio dei costi
Spese condominio
Nessuna spesa condominiale
Efficienza energetica
  • Anno di costruzione

    1800
  • Stato

    Da ristrutturare
  • Certificazione energetica

    In attesa di certificazione
Planimetria
Scopri ogni angolo dell'immobile
+39
Opzioni aggiuntive

Contatta l'inserzionista

Oppure