Terreno edificabile in Vendita

€ 300.000
974 m²

Nota

Annuncio aggiornato il 03/07/2025
Descrizione

riferimento: EK-116656431

Castelvetro di Modena – A soli 2 km dal centro storico, in un suggestivo paesaggio collinare circondato da vigneti e uliveti, si propone in vendita un esclusivo terreno edificabile di 976 mq, ideale per la realizzazione della casa dei tuoi sogni.

Caratteristiche principali del terreno:
• Superficie edificabile: 130 mq di superficie utile, perfetti per progettare una villa personalizzata e funzionale.
• Posizione strategica: Immerso nel verde, con vista panoramica sulle dolci colline emiliane, ma al contempo vicino ai principali servizi del paese e a soli 20 minuti da Modena.
• Urbanizzazione completata: Tutte le opere infrastrutturali sono già ultimate, con allacciamenti a rete idrica, elettrica e fognaria pronti per l’utilizzo.

Opportunità progettuale:
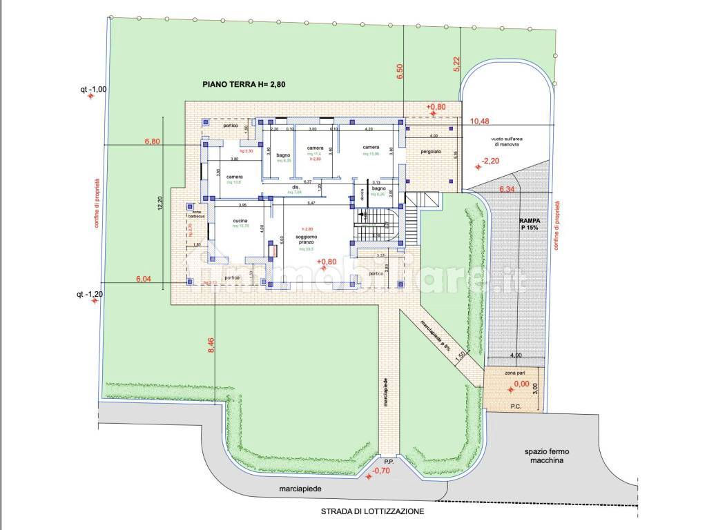
È già disponibile una bozza di progetto per una villa unifamiliare su più livelli, pensata per offrire comfort, eleganza e spazi ben distribuiti. Il progetto può essere personalizzato per adattarsi alle esigenze del futuro proprietario, con possibilità di includere ampie vetrate, terrazze panoramiche, un giardino privato e, volendo, una piscina.

Perché scegliere questo terreno:
Questo immobile rappresenta una rara opportunità di vivere in una delle aree più ambite del territorio modenese, apprezzata per la qualità della vita, il paesaggio incontaminato e la vicinanza a rinomate cantine vinicole e percorsi enogastronomici.

Prezzo e informazioni:
Per ulteriori dettagli, planimetrie o visite in loco, non esitare a contattarci.
Caratteristiche
Contratto
Vendita
Tipologia
Terreno edificabile
Superficie
974 m²
Disponibilità
Libero
Qualificazione urbanistica
Singola unità
Dislivello terreno
Leggero
Altezza massima edificabile
20 m
Area edificabile
974 m²
Accesso in strada/servitù di passaggio
In strada asfaltata
Altre caratteristiche
  • Allaccio acqua
  • Allaccio elettricità
  • Allaccio fogne
  • Allaccio gas
  • Illuminazione pubblica
Informazioni sul prezzo
Prezzo
€ 300.000
Prezzo al m²
308 €/m²
New
Planimetria
Progetto
Progetto
Progetto
Scopri ogni angolo dell'immobile
+11
Opzioni aggiuntive

Contatta l'inserzionista

Oppure