Agenzie
Prezzi immobili
Valuta casa
Mutui
Pubblica annunci
pubblica
Accedi
1/7
Terreno edificabile in Vendita
Andora
Via del Santo
€ 88.000
1.070 m²
Nota
aggiungi
Annuncio aggiornato il 19/10/2025
Descrizione
riferimento
: EK-116854057
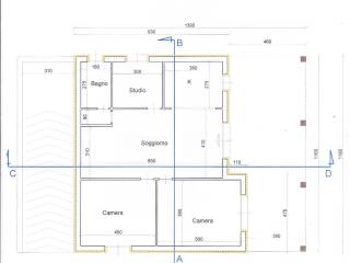
San Bartolomeo a 5 km dal mare di Andora. Terreno con alberi di olivi e da frutto -buona esposizione -ampio posteggio sottostante. Progetto x una villa su 2 piani garage cantina ,e primo piano abitativo.
leggi tutto
Caratteristiche
Contratto
Vendita
Tipologia
Terreno edificabile
Superficie
1.070 m²
Disponibilità
Libero
Qualificazione urbanistica
Singola unità
Dislivello terreno
Leggero
Area edificabile
200 m²
Accesso in strada/servitù di passaggio
In strada asfaltata
Altre caratteristiche
Allaccio acqua
Allaccio elettricità
Illuminazione pubblica
Informazioni sul prezzo
Prezzo
€ 88.000
Prezzo al m²
82 €/m²
avvisami se scende di prezzo
Scopri ogni angolo dell'immobile
+5
Inserzionista
luciano manno
Opzioni aggiuntive
segnala annuncio
stampa annuncio
condividi annuncio
Contatta l'inserzionista
Richiedere maggiori informazioni
Motivo di contatto
Mi interessa questo immobile, vorrei avere maggiori informazioni
Invia messaggio
luciano manno
segnala annuncio
chiama
messaggio