map icon

Villa unifamiliare, nuova, 120 m², Piano di Conca, Massarosa

Massarosa
€ 370.000
4
120 m²
2

Nota

Annuncio aggiornato il 12/12/2024
Descrizione

riferimento: M75

SPLENDIDA VILLETTA D'ANGOLO DI NUOVA REALIZZAZIONE

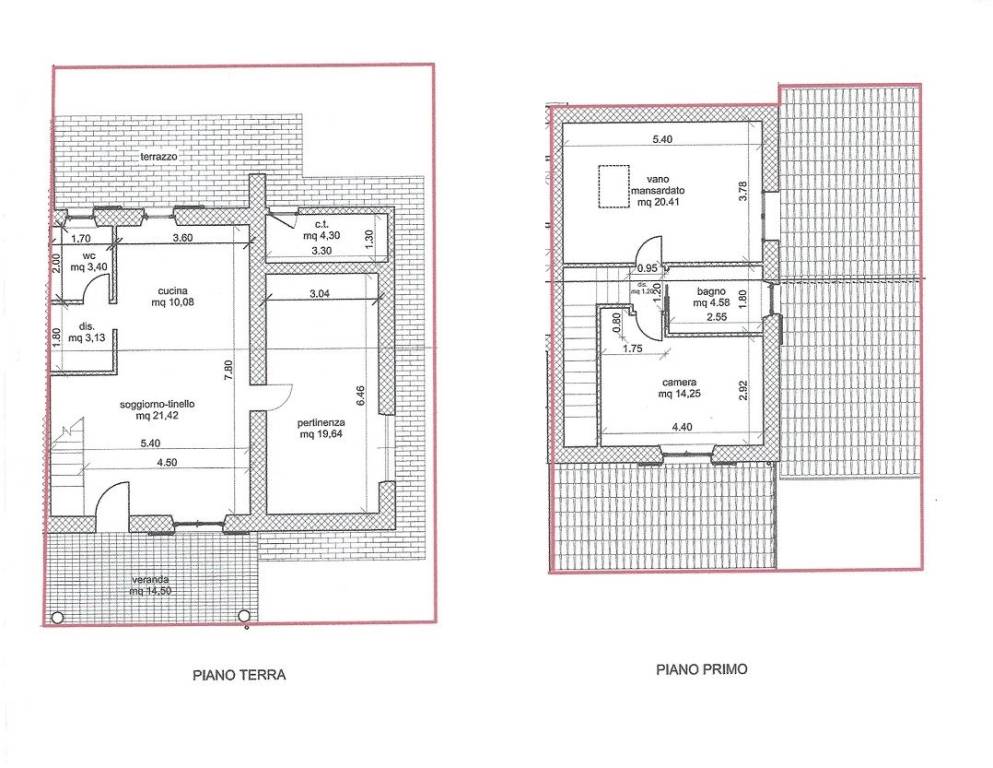
In complesso di nuova realizzazione villetta d'angolo su due livelli, dotata di ogni confort e corredata da giardino su 3 lati; si compone di ampia zona giorno, vano accessorio, 2 camere e 2 bagni - possibilità di personalizzare gli interni
Caratteristiche
Tipologia
Villa unifamiliare | Intera proprietà | Classe immobile signorile
Contratto
Vendita
Piano
Piano terra
Piani edificio
2
Superficie
120 m²
Locali
4
Camere da letto
3
Bagni
2
Box, posti auto
2 in parcheggio/garage comune
Riscaldamento
Autonomo, alimentato a fotovoltaico
Altre caratteristiche
  • Fibra ottica
  • Porta blindata
  • Cancello elettrico
  • VideoCitofono
Informazioni sul prezzo
Prezzo
€ 370.000
Prezzo al m²
3.083 €/m²
New
Dettaglio dei costi
Spese condominio
Nessuna spesa condominiale
Efficienza energetica

Consumo di energia

A4

Planimetria
Planimetria
Mutuo
%
Durata del mutuo

Rata da € 1.099 al mese

€ 111.000 (30%)

€ 259.000 (70%)

Vuoi sapere che mutuo puoi richiedere?

Opzioni aggiuntive

Contatta l'inserzionista

Oppure