Villa unifamiliare via Sorrento 1, Trentola-Ducenta

€ 380.000
4
185 m²
2
No
Balcone

Nota

Annuncio aggiornato il 30/07/2025
Descrizione

riferimento: trentola380

Villa in fase di ristrutturazione

Nei pressi di via Nunziale S. Antonio a pochi passi dal Bar Gallery, dalle scuole medie ed Aversa, proponiamo la Vendita in ESCLUSIVA di una Villa su due livelli con ampio spazio esterno e studio personale annesso con ingresso indipendente dalla strada.

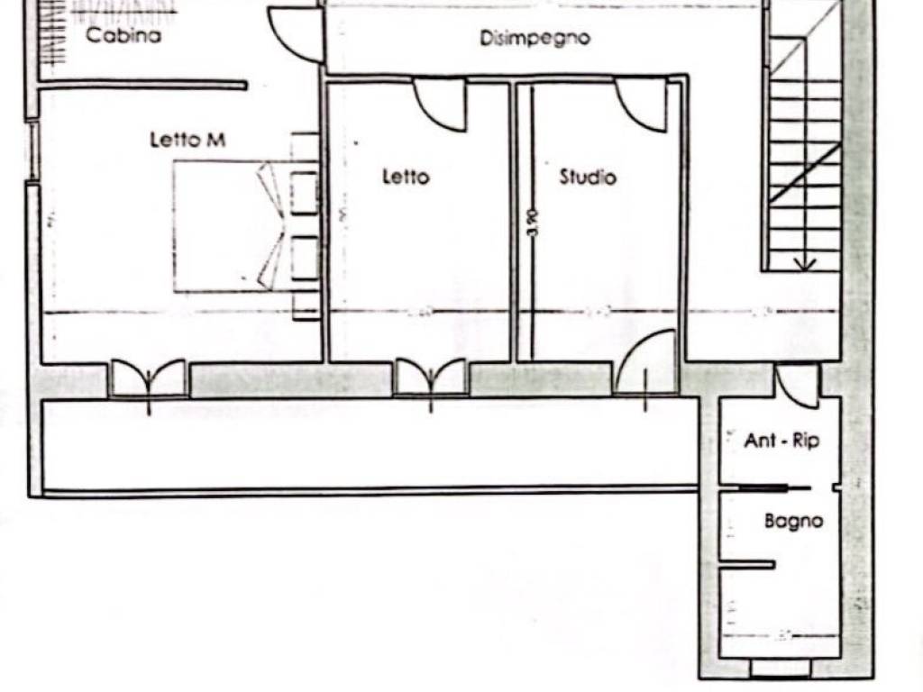
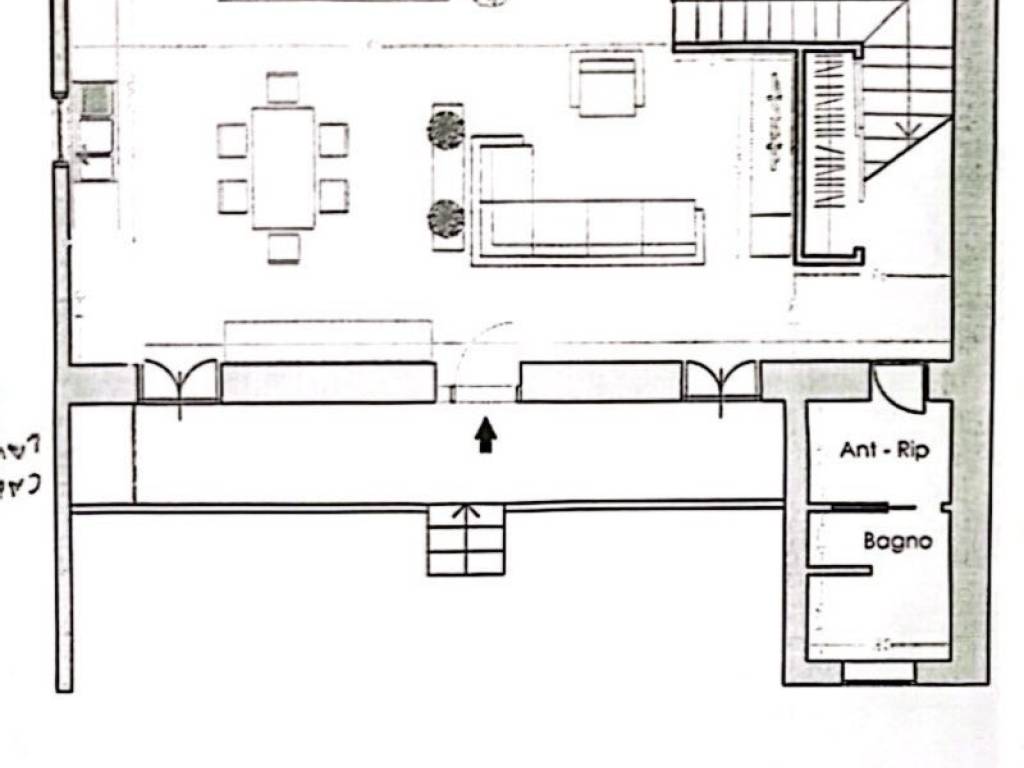
L'immobile, in corso di ristrutturazione, è diviso in piano giorno composto da salone doppio, cucina abitabile e bagno e scala per il piano notte composto da 3 camere da letto e bagno, per una complessiva metratura di 140 Mq calpestabili interni oltre a balconi.

L'immobile inoltre è dotato di cortile antistante di 150 mq e di un pratico vano e bagno ideale ad uso studio data la presenza di entrata dalla strada indipendente. Esposta a sud, regala luminosità tutto il giorno. La zona centrale la rende infine strategica per raggiungere le città di Caserta o Napoli.
La casa è personalizzabile, vi è possibilità di scegliere le rifiniture per soddisfare i propri gusti, e di modificare la distribuzione degli spazi interni al fine di adeguarla alle proprie esigenze.

Ideale anche per realizzare una soluzione bifamiliare.

Cerchi una nuova casa da personalizzare? Necessiti di ampio spazio e di una posizione strategica? Ti aspettiamo per visionare questa opportunità!

I metri quadrati complessivi, indicati nella presente offerta pubblicitaria, sono calcolati tenendo in considerazione tutte le superfici interne ed esterne dell'immobile con relative pertinenze annesse, adottando i parametri classici per una stima sintetica comparativa come utilizzato nel DPR 138 DEL 23 MARZO 1998.
Se vuoi saperne di più, puoi parlare con Luigi De Cristofaro.

Di solito risponde entro 2 giorni

Caratteristiche
Tipologia
Villa unifamiliare | Classe immobile signorile
Contratto
Vendita
Piano
Piano terra, piano rialzato
Piani edificio
2
Ascensore
No
Superficie
185 m²
Locali
4
Camere da letto
3
Cucina
Cucina abitabile
Bagni
2
Arredato
No
Balcone
Terrazzo
No
Box, posti auto
3 in parcheggio/garage comune
Riscaldamento
Autonomo, a radiatori, alimentato a metano
Climatizzazione
Predisposizione impianto
Altre caratteristiche
  • Esposizione esterna
  • Fibra ottica
  • Infissi esterni in triplo vetro / PVC
  • Porta blindata
  • Cancello elettrico
  • Impianto tv singolo
  • VideoCitofono
Dettaglio superficie

Abitazione

Piano
Piano rialzato
Superficie
140,0 m²
Coefficiente
100%
Tipo superficie
Principale
Sup. commerciale
140,0 m²

Esterno

Piano
Piano terra
Superficie
150,0 m²
Coefficiente
10%
Tipo superficie
Principale
Sup. commerciale
15,0 m²

Balcone

Piano
Piano terra
Superficie
16,0 m²
Coefficiente
30%
Tipo superficie
Principale
Sup. commerciale
4,8 m²

Altro

Piano
Piano terra
Superficie
25,0 m²
Coefficiente
100%
Tipo superficie
Principale
Sup. commerciale
25,0 m²
Informazioni sul prezzo
Prezzo
€ 380.000
Prezzo al m²
2.054 €/m²
New
Dettaglio dei costi
Spese condominio
Nessuna spesa condominiale
Spese riscaldamento
€ 1/anno
Efficienza energetica

Consumo di energia

≥ 175 kWh/m² annoG

Planimetria
PIANTINA PIANO TERRA
PIANTINO PRIMO PIANO
Virtual tour
Scopri ogni angolo dell'immobile
+52
Inserzionista

Luigi De Cristofaro

scheda agenzia
Opzioni aggiuntive

Contatta l'inserzionista

Oppure

Luigi De Cristofaro