Palazzo - Edificio in Vendita

€ 1.680.000
1
688 m²
S, T, 1

Nota

Annuncio aggiornato il 11/03/2026
Descrizione

riferimento: CORSICO

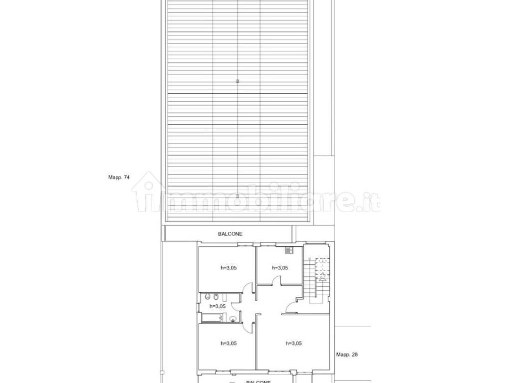
PALAZZINA CON UFFICI E CAPANNONE

Vendesi palazzina da cielo-terra, con annessa area di cortile di pertinenza di proprietà esclusiva, dotata di accessi carraio e pedonale indipendenti, costituita da due piani (3 fuori terra) ad uso uffici e residenza oltre lastrico solare al piano terzo e locale deposito/magazzino al piano interrato, collegati mediante vano scala interno con annesso capannone ad uso laboratorio al piano terra, in Comune di Corsico (MI) - Via Monferrato n. 7 e n. 7A.
L'immobile è ubicato a confine con il Comune di Milano, in ottima posizione, dotata di tutte le infrastrutture ed attività commerciali, agevolmente collegata con Milano dai mezzi di trasporto pubblico di superficie (transitano autobus 321-322) e dall'adiacente linea Rossa della metropolitana MM1 - fermata Bisceglie che si raggiunge facilmente attraversando il nuovo Parco dei Fontanili.
Via Monferrato è compresa tra le Vie Leonardo da Vinci e la Via Quintino Sella, adiacente la Via Lorenteggio e la Strada Statale 494 Nuova Vigevanese che si interseca allacciandosi alla Tangenziale Ovest di Milano (Svincolo Vigevano-MI Lorenteggio).
La zona ha inoltre accesso diretto all'adiacente parco ed area verde di oltre 300.000 mq. che ospita il progetto di rigenerazione urbana denominata Sei-Milano; progetto a cui hanno aderito architetti di fama mondiale e che ha dato alla luce a nuovi stabili residenziali dotati di servizi ed esercizi anche commerciali oltre a fabbricati ad uso
L'immobile dotato di vano scala interno è attualmente composto da:
- Piano interrato: locali ad uso ad uso deposito/magazzino di mq. 130 circa aventi altezza
di mt. 2.40 collegati mediante scala interna agli uffici al piano terra e mediante scala
esterna al cortile interno al piano terra;
- Piano terreno: cortile di proprietà di mq. 110 circa con posto auto interno con accessi
pedonale e carraio; locale open-space ad uso uffici con servizio igienico di mq. 130
circa, dotato di pavimento galleggiante e di contro-soffitto, comunicanti con il capannone
di 350 m² circa ad uso laboratorio/deposito con servizi igienici, locali spogliatoio e
cortiletto interno di mq 30 circa.
- Piano primo: abitazione con annessi balcone e terrazzo complessivamente di 130 mq.
circa;
- Piano secondo: abitazione con due balconi complessivamente di 130 mq. circa;
- Piano terzo: lastrico solare (terrazzo praticabile) con volume tecnico e ripostiglio
complessivamente di mq. 130 circa.
La palazzina e il capannone attualmente si trovano in buono stato di manutenzione dotati di serramenti in alluminio con doppio vetro, si prestano sia a modifiche interne che a cambi di destinazione d'uso.

Libero al rogito.
Se vuoi saperne di più, puoi parlare con Patrizia Balsamo.
Caratteristiche
Contratto
Vendita
Tipologia
Palazzo - Edificio | Classe immobile media
Superficie
688 m²
Locali
1 locale
Piano
5 piani: Interrato (-1), Piano terra, da 1° a 3°
Piani edificio
4
Box, posti auto
1 in parcheggio/garage comune
Altre caratteristiche
  • 4 balconi
  • Esposizione doppia
  • Infissi esterni in doppio vetro / metallo
Dettaglio superficie

Magazzino - Deposito

Piano
Interrato (-1)
Superficie
132,0 m²
Coefficiente
50%
Tipo superficie
Principale
Sup. commerciale
66,0 m²

Ufficio o Studio

Piano
Piano terra
Superficie
130,0 m²
Coefficiente
100%
Tipo superficie
Principale
Sup. commerciale
130,0 m²

Appartamento

Piano
1
Superficie
131,0 m²
Coefficiente
100%
Tipo superficie
Principale
Sup. commerciale
131,0 m²

Appartamento

Piano
2
Superficie
130,0 m²
Coefficiente
100%
Tipo superficie
Principale
Sup. commerciale
130,0 m²

Terrazzo

Piano
3
Superficie
135,0 m²
Coefficiente
30%
Tipo superficie
Principale
Sup. commerciale
40,5 m²

Giardino

Piano
Piano terra
Superficie
130,0 m²
Coefficiente
10%
Tipo superficie
Principale
Sup. commerciale
13,0 m²

Magazzino - Deposito

Piano
Piano terra
Superficie
355,0 m²
Coefficiente
50%
Tipo superficie
Principale
Sup. commerciale
177,5 m²
Informazioni sul prezzo
Prezzo
€ 1.680.000
Prezzo al m²
2.442 €/m²
Efficienza energetica

Consumo di energia

111.16 kWh/m² annoC

Scopri ogni angolo dell'immobile
+18
Mutuo
%
Durata del mutuo

Rata da € 4.863 al mese

€ 504.000 (30%)

€ 1.176.000 (70%)

Vuoi un preventivo personalizzato e gratuito?

Opzioni aggiuntive

Contatta l'inserzionista

Oppure