Capannone all'asta via Feliciano Fedeli, 16, Foligno

da € 383.150,00
14/11/2025
1.286 m²

Nota

Annuncio aggiornato il 04/04/2025
Descrizione

riferimento: 19982

Edificio artigianale con cortile e celle frigorifere

Quest’immobile viene venduto tramite asta online. Edificio artigianale sito a Foligno (PG), località La Paciana, via Feliciano Fedeli 16. Il contesto è di prima periferia con traffico regolare. La zona è urbanizzata, ben collegata al centro del paese ove si trovano i principali servizi e alla rete infrastrutturale. Area industriale caratterizzata da stabilimenti produttivi. Edificio realizzato nel 2001 con struttura portante prefabbricata in cemento armato e tamponamenti in pannelli, al centro di lotto recintato e dotato di cortile carrabile illuminato. Fabbricato su due piani con copertura piana. Agibilità rilasciata.

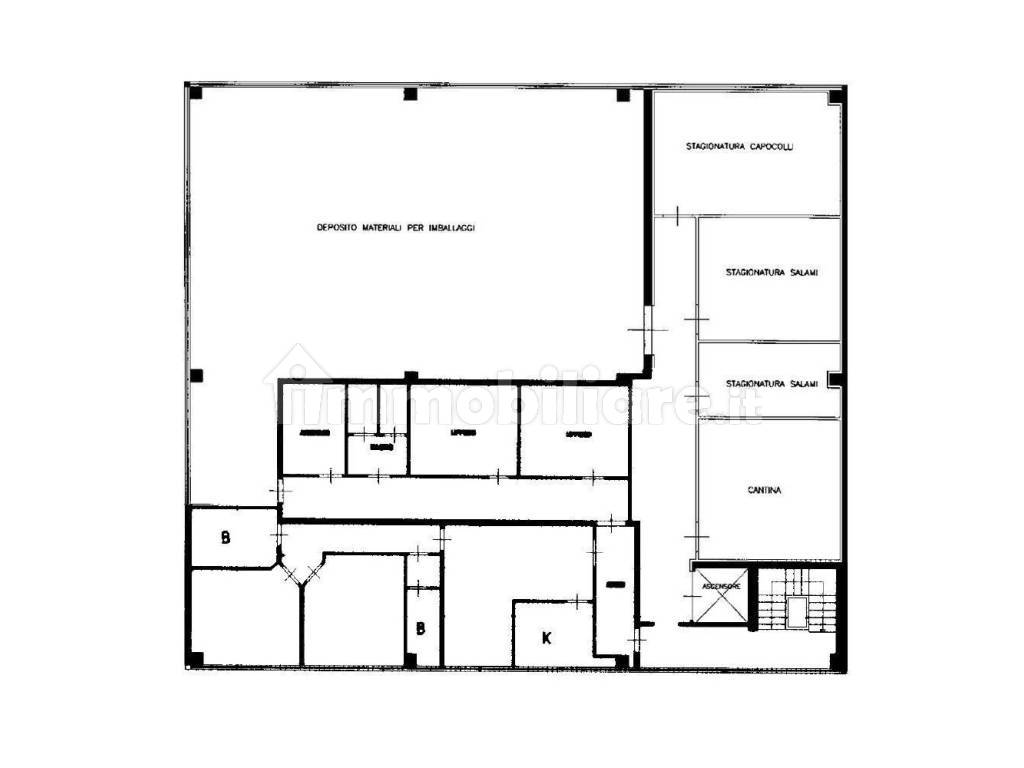
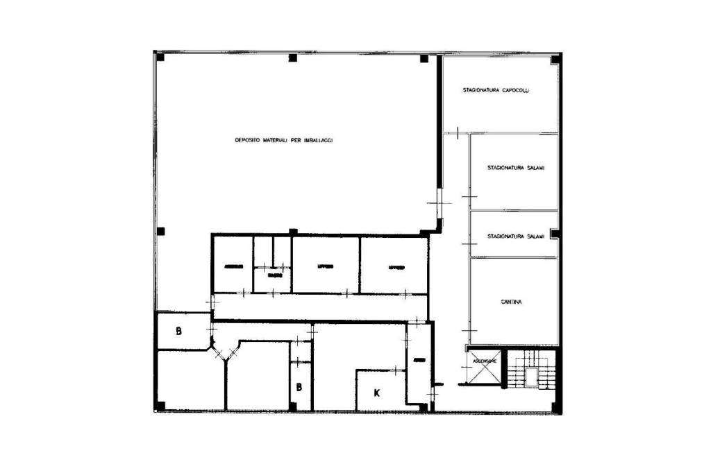
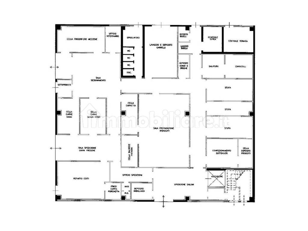
Opificio adibito alla lavorazione delle carni. Piano terra con laboratori, area vendita, celle frigorifere, spogliatoi e locali tecnologici. Piano primo con depositi, cantine, altre celle frigorifere, uffici, servizi e alloggio custode grezzo. Livelli collegati da vano scala e ascensore.
Finiture idonee alle attività in essere. Edificio con quattro portoni carrabili e finestre a nastro. Riscaldamento con caldaia a metano e ventilconvettori. Climatizzazione e refrigerazione. Luci di emergenza e antincendio.
Immobile affittato. Condizioni ottime.
Strutture per celle frigorifere incluse nella vendita.
Altri beni mobili esclusi dalla vendita.

Superficie principale: 1286 mq circa
COMPLESSO ARTIGIANALE
Opificio: 1090,00 mq
Uffici: 81,79 mq
Alloggio: 113,36 mq
Cortile privato: 647,00 mq
Piena proprietà di:
Opificio (CF): Foglio 114 – Particella 431 – Subalterno 6 – D/1
Ufficio (CF): Foglio 114 – Particella 431 – Subalterno 3 – A/10
Alloggio (CF): Foglio 114 – Particella 431 – Subalterno 4 – A/2
Cortile (CF): Foglio 114 – Particella 431 – Subalterno 7 – BCNC
Quimmo.it: iniziativa tech del Gruppo illimity specializzata nell’intermediazione digitale di beni immobili provenienti da tribunali, nuovi sviluppi immobiliari, financial institutions e libero mercato.
Da oltre 10 anni Quimmo.it è il portale specializzato nella compravendita di immobili tramite asta giudiziaria. Il portale è infatti iscritto nel Registro Gestori della vendita telematica e nell’elenco dei siti web autorizzati allo svolgimento della pubblicità legale. Con Quimmo puoi scegliere tra migliaia di immobili di ogni tipo e partecipare alle aste online per acquistare la soluzione più adatta alle tue esigenze.
Affidati all’esperienza decennale dei nostri esperti e richiedi l’assistenza gratuita per la presentazione e compilazione dell’offerta.
Contattaci subito.
Caratteristiche
Contratto
Vendita
Tipologia
Capannone | Intera proprietà
Superficie
1.286 m²
Locali
1 bagno
Piani edificio
2
Box, posti auto
1 in box privato/box in garage
Dati catastali
Foglio 114 - Particella 431 - Subalterno 6
Efficienza energetica
  • Anno di costruzione

    2001
  • Stato

    Buono / Abitabile
  • Riscaldamento

    Autonomo, alimentato a metano
  • Climatizzatore

    Autonomo
Dettaglio vendite
Tipo vendita
Competitiva
Data vendita
14/11/2025, 11:00
Per partecipare
Rialzo minimo
€ 5.000
Spesa prenota debito
No
Contributo non dovuto
No
Luogo vendita
Via Feliciano Fedeli, N. 16
Dettagli lotto
Numero immobili
1
Dati procedura
Aggiornato il
02/10/2025
Numero procedura
2/2016
Procedura
Concordato Preventivo
Tribunale
Spoleto
Documenti ufficiali
Planimetria
Scopri ogni angolo dell'immobile
+35
Opzioni aggiuntive

Contatta l'inserzionista