Terreno agricolo in Vendita

€ 450.000
50.525 m²

Nota

Annuncio aggiornato il 27/06/2025
Descrizione

riferimento: B110

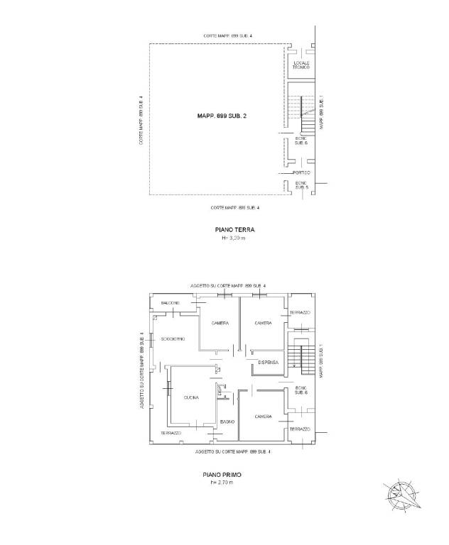
TERRENO DI 5 ETTARI CON CASA INDIPENDENTE E STALLA

PIANFEI: Su lotto di terreno di circa 50.525 mq (circa 12 Gp), due fabbricati cielo terra liberi su quattro lati, in parte ad uso abitativo, autorimessa e uso agricolo. L'abitazione è composta da: al piano terra ampia autorimessa con locale tecnico; al piano primo ingresso su disimpegno, soggiorno, cucina abitabile, tre camere da letto, bagno, lavanderia, balcone e tre terrazzi. In corpo separato, fabbricato rustico adibito a deposito agricolo, stalla tutt'ora attiva ed utilizzata, e fienile. Completa la proprietà ampie tettoie e terreni agricoli seminativi.
Se vuoi saperne di più, puoi parlare con Francesco Marchisio.
Caratteristiche
Contratto
Vendita
Tipologia
Terreno Agricolo
Superficie
50.525 m²
Disponibilità
Libero
Dislivello terreno
Leggero
Accesso in strada/servitù di passaggio
In strada sterrata
Altre caratteristiche
  • Illuminazione pubblica
  • Seminativo
Informazioni sul prezzo
Prezzo
€ 450.000
Prezzo al m²
9 €/m²
New
Planimetria
Planimetria
Planimetria
Planimetria
Planimetria
Scopri ogni angolo dell'immobile
+48
Opzioni aggiuntive

Contatta l'inserzionista

Oppure