Locale commerciale in Vendita

€ 725.000
5+
263 m²
2

Nota

Annuncio aggiornato il 05/11/2025
Descrizione

riferimento: TO200001

Zona Centro Cittadella Via San Quintino vendesi ampio locale commerciale con sei vetrine.

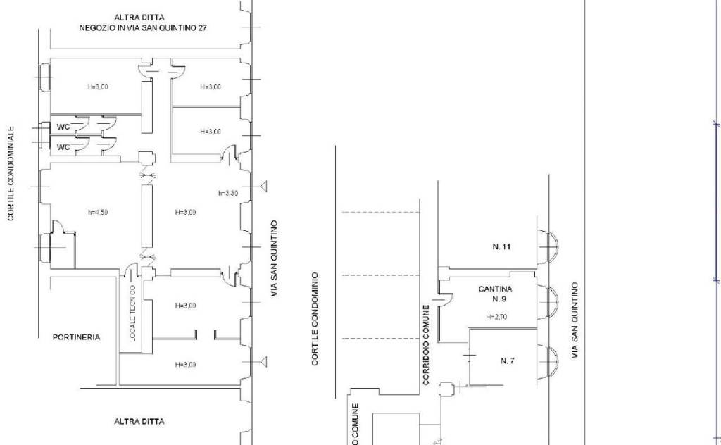
Rif: TO200001 - In stabile signorile proponiamo in vendita un ampio negozio con accesso da Via San Quintino 29, in un palazzo signorile con accesso da Corso Galileo Ferraris 26. Il locale commerciale attualmente è libero. La zona è servita dai mezzi pubblici, nelle vicinanze c'è la stazione della metropolitana ‘’Re Umberto’’. Il negozio è in ottimo stato manutentivo, accessibile da strada, con sei vetrine. Internamente il locale commerciale è composto da un ampio ingresso/reception, 5 uffici, un locale adibito a magazzino, due servizi (uomo-donna) ed una cantina al piano interrato. Il negozio si presta a diverse tipologie di attività e può anche essere utilizzato come studio tecnico o professionale. La commercializzazione avviene in collaborazione con la Abitat Group Torino
Caratteristiche
Contratto
Vendita
Tipologia
Locale commerciale
Superficie
263 m²
Locali
5+ locali, 2 bagni
Piani edificio
4
Disponibilità
Libero
Altre caratteristiche
  • Cablato
  • Impianto di allarme
Informazioni sul prezzo
Prezzo
€ 725.000
Prezzo al m²
2.757 €/m²
New
Dettaglio dei costi
Spese condominio
€ 410/mese
Efficienza energetica

Consumo di energia

68.66 kWh/m³ annoF

Planimetria
PLANIMETRIA
Scopri ogni angolo dell'immobile
+20
Opzioni aggiuntive

Contatta l'inserzionista

Oppure