Palazzo - Edificio in Vendita

€ 690.000
5+
752 m²
3

Nota

Annuncio aggiornato il 24/10/2025
Descrizione

riferimento: EK-117299481

Edificio Residenziale Commerciale

RIBASSO PREZZO DA 750.000 A 690.000
Sabaudia: via Principe Biancamano, 32: proponiamo in vendita in zona residenziale-commerciale prossima al centro cittadino intero stabile composto da un appartamento con grande terrazza al piano primo, un ampio locale commerciale al piano terra e un ulteriore locale commerciale al piano seminterrato.
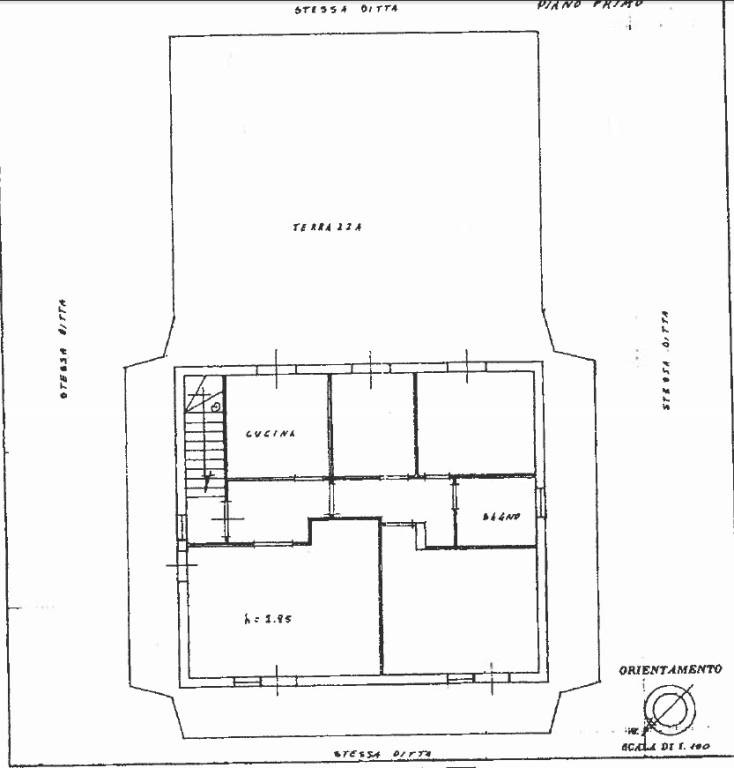
L'appartamento di 116 mq vede gli spazi interni così organizzati: ampio ingresso, cucina abitabile, sala, 3 camere, ampio bagno e terrazza perimetrale.
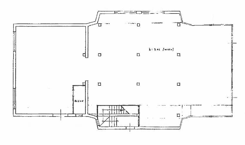
Locale commerciale al piano terra mq 298; locale commerciale al piano seminterrato mq 328. I locali commerciale sono attualmente affittati con un'ottima rendita.
I locali commerciali offrono nel piazzale antistante lo stabile numerosi posti auto.
L'edificio è avvalorato da una spaziosa cantina e da un box auto.
Se vuoi saperne di più, puoi parlare con Referente Maria Rita.
Caratteristiche
Contratto
Vendita | Immobile a reddito
Tipologia
Palazzo - Edificio | Classe immobile media
Superficie
752 m²
Locali
5+ locali, 3 bagni
Piano
3 piani: da Seminterrato a Piano terra, 1°, con accesso disabili
Piani edificio
3
Box, posti auto
1 in box privato/box in garage, 10 in parcheggio/garage comune
Disponibilità
Libero
Altre caratteristiche
  • 1 balcone
  • Esposizione esterna
Dettaglio superficie

Appartamento

Piano
1
Superficie
116,0 m²
Coefficiente
100%
Tipo superficie
Principale
Sup. commerciale
116,0 m²

Box o garage

Piano
Piano terra
Superficie
20,0 m²
Coefficiente
50%
Tipo superficie
Principale
Sup. commerciale
10,0 m²

Negozio - Locale commerciale

Piano
Piano terra
Superficie
298,0 m²
Coefficiente
100%
Tipo superficie
Principale
Sup. commerciale
298,0 m²

Negozio - Locale commerciale

Piano
Seminterrato
Superficie
227,0 m²
Coefficiente
100%
Tipo superficie
Principale
Sup. commerciale
227,0 m²

Magazzino - Deposito

Piano
Seminterrato
Superficie
101,0 m²
Coefficiente
100%
Tipo superficie
Principale
Sup. commerciale
101,0 m²
Informazioni sul prezzo
Prezzo
€ 690.000
Prezzo al m²
918 €/m²
New
Efficienza energetica

Consumo di energia

≥ 175 kWh/m² annoG

Planimetria
piano terra
piano seminterrato
piano primo
piano seminterrato 1
Scopri ogni angolo dell'immobile
+24
Inserzionista
Referente Maria Rita

Referente Maria Rita

scheda agenzia
Mutuo
%
Durata del mutuo

Rata da € 2.049 al mese

€ 207.000 (30%)

€ 483.000 (70%)

Vuoi un preventivo personalizzato e gratuito?

Opzioni aggiuntive

Contatta l'inserzionista

Oppure
Referente Maria Rita

Referente Maria Rita